ico powierzchnia

POWIERZCHNIA

61,83 m2

ico pietro

PIĘTRO

1 / 3

ico liczba pokoi

LICZBA POKOI

3

ico parking

PARKING

-

Szczegóły oferty 63459/MS/MAX Data dodania: dzisiaj

  • Kategoria Mieszkania na sprzedaż
  • Lokalizacja mazowieckie, Julianów, ul. Urbanistów
  • Powierzchnia całkowita61,83 m2
  • Cena

    748 143 zł

    Reklama ico Sprawdź ratę Sprawdź ratę RSSO 6,71%
    na dz. 24.11.25
    trade ico trade ico trade
  • Cena za m2 12 100 zł/m2
  • Liczba pokoi 3
  • Piętro 1
  • Liczba pięter w budynku 3
  • Typ budynkuinny
  • Rok budowy 2025
  • Materiał inny
  • KuchniaAneks

Lokalizacja

Julianów, ul. Urbanistów

Opis oferty

Zapraszamy do zapoznania się z mieszkaniem na nowym osiedlu położonym w malowniczym otoczeniu.
Lokalizacja osiedla zapewnia dobrą komunikację z Piasecznem jak też z samą Warszawą. Daje spokój i odskocznie od wielkomiejskiego zgiełku.
W okolicy są przystanki autobusowe, przedszkole, szkoła oraz sklepy. (w budowie nowa szkoła 500m od inwestycji)
Dzięki ścieżkom rowerowym można dojechać do Lasu Kabackiego (8min jazdy), Park Zdrojowy w Konstancinie-Jeziornej (16min jazdy) czy Parku Kultury w Powsinie (16min jazdy)

Niedaleko znajdują się:
- Centrum Sportów Lavo (1km)
- Centrum handlowe Auchan (3,5km)
- Centrum handlowe San Park (3,5km)
- Designer Outlet Warszawa (2,5km)
- wjazd na S7 (7,1km)

Opis mieszkania:
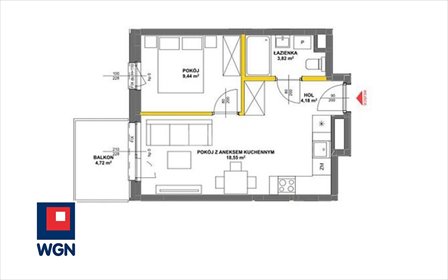
- 3 ustawne pokoje
- Salon z aneksem kuchennym (18,8mkw)
- Przestronny hol (11,23mkw)
- Łazienka oraz osobna toaleta
- Dwa balkony (4,72mkw & 3,76mkw)
Komórka lokatorska w PROMOCJI za 1000 zł.
Możliwość dokupienia miejsca postojowego w garażu podziemnym oraz komórki w budynku B i C.
W ofercie też inne lokale w tej inwestycji.
Zapraszamy do kontaktu!     


English description:
We invite you to familiarize yourself with an apartment in a new estate located in a picturesque environment.
Location of the estate provides good communication with Piaseczno as well as with Warsaw itself. It gives peace and quiet and a break from the hustle and bustle of big-city life.
In the area there are bus stops, kindergarten, school and stores. (under construction a new school 500m from the investment)
Thanks to bike paths you can reach the Kabaty Forest (8min drive), the Spa Park in Konstancin-Jeziorna (16min drive) or the Culture Park in Powsin (16min drive)

Nearly there are:
- Lavo Sports Center (1km)
- Auchan Shopping Center (3.5km)
- San Park Shopping Center (3.5km)
- Designer Outlet Warsaw (2.5km)
- S7 entrance (7.1km)

Description of the apartment:
- 3 arranged rooms
- Living room with kitchenette (18,8sqm)
- Spacious hall (11,23sqm)
- Bathroom and separate toilet
- Two balconies (4,72sqm & 3,76sqm)

Possibility to buy a parking space in underground garage and a storage unit in building B and C.
Other units in this development are also on offer.
We invite you to contact us!
.

Podstawowe
Cena za mkw. :  12 100,00 PLN
Stan lokalu : Deweloperski

Pomieszczenia
Typ mieszkania : Mieszkanie
Salon : 19 mkw.
Kuchnia : Aneks
Liczba łazienek : 1
Lb. oddzielnych toalet : 1
Garderoba : Nie

Powierzchnia dodatkowa
Liczba balkonów : 2
Balkon : Balkon Klasyczny,
Piwnica : Nie
Komórka : Tak
Ogród : Nie

Media i wyposażenie
Ogrzewanie : Inne,
Ciepła woda : Inne,
Gaz : Nie

Miejsca parkingowe
Parking podziemny : 1

Cena za 1
Parking podziemny : 45 000 PLN

Budynek
Rok budowy : 2025
Stan budynku : W budowie
Materiał : Mieszany
Liczba pięter : 3
Winda : Tak
Udog. dla niepełnosprawnych : Tak


Więcej podobnych ofert nieruchomości na maxon.pl
Link do oferty: http://mieszkania.maxon.pl/oferta/mieszkanie-sprzedaz-piaseczynski-piaseczno-julianow-63459-MS-MAX
Nasze usługi świadczymy w oparciu o umowę pośrednictwa, która gwarantuje Państwu bezpieczeństwo transakcji oraz pełną opiekę naszego doradcy przez cały okres trwania współpracy. Za wykonaną usługę pobieramy wynagrodzenie zgodnie z warunkami uzgodnionymi w zawartej umowie (za wyjątkiem umów zawartych w programie 0%).
Prezentowane oferty nie stanowią oferty w rozumieniu Kodeksu Cywilnego. Staramy się, aby informacje dotyczące oferowanych obiektów były możliwie dokładne, kompletne i aktualne. Ze względu na okoliczności, iż informacje te pochodzą od osób trzecich i część z nich nie zawsze daje się zweryfikować, MAXON Nieruchomości Sp. z o.o. nie ponosi odpowiedzialności za ich dokładność, kompletność i aktualność.


Numer oferty: 63459/MS/MAX
Osoba odpowiedzialna zawodowo: Kamila Charlińska
Nr licencji zawodowej: 1

Statystyki ogłoszenia:

oko

Podobne nieruchomości