Funkcjonalne 3-pokojowe mieszkanie do wykończenia w Antoniuku Białystok, Antoniuk - 56,3m2
Oferta na wyłączność
420 000 zł 7 460,04 zł/m2POWIERZCHNIA
56,30 m2
PIĘTRO
4 / 4
LICZBA POKOI
3
PARKING
-
Szczegóły oferty 124144/3877/OMS
- Kategoria Mieszkania na sprzedaż
- Lokalizacja podlaskie, Białystok, Antoniuk
- Powierzchnia całkowita56,30 m2
-
Cena
420 000 zł
-
Czynsz administracyjny
750 zł
- Cena za m2 7 460,04 zł/m2
- Liczba pokoi 3
- Piętro 4
- Liczba pięter w budynku 4
- Typ budynkublok
- Rok budowy 1969
- Forma własności własność
- Materiał cegła
- Kuchniaoddzielna
- Informacje dodatkowe:
- ogrzewanie miejskie
Lokalizacja
Opis oferty
Oferujemy na sprzedaż funkcjonalne mieszkanie w dobrej lokalizacji – przy ul. Antoniukowskiej w dzielnicy Antoniuk. To oferta dla osób dla których mieszkanie do generalnego remontu to za duże wyzwanie a w pełni wykończone nie spełnia idealnie oczekiwań. Dodatkowo cenią swój czas i chcą mieć blisko co centrum aby w pełni korzystać z uroków miasta.
Mieszkanie położone jest na czwartym piętrze w niskim bloku z cegły po termomodernizacji i odnowionymi klatkami schodowymi.
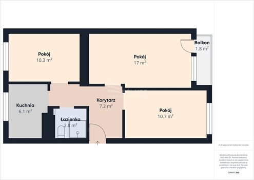
Na powierzchni 56,30 m² znajdują się:
- 3 ustawne pokoje - 17 m2, 10,7 m2, 10,3 m2
- oddzielna kuchnia - 6,1 m2
- łazienka z prysznicem - 2,8 m2
- przedpokój
Wszystkie najtrudniejsze i najbardziej uciążliwe prace zostały już wykonane. Położono nową instalację elektryczną i wodno – kanalizacyjną oraz C.O., wykonano nowe tynki, pomalowano ściany i sufity, zamontowano oświetlenie oraz położono płytki w łazience oraz zamontowano brodzik do kabiny prysznicowej.
Do zrobienia zostało:
- ułożyć podłogi
- wykończyć kuchnię i łazienkę
- zamontować drzwi
- umeblować
- zamieszkać i cieszyć się własnym mieszkaniem
Taki stan rzeczy sprawia, że możesz już idealnie dopasować resztę wyglądu i wystroju mieszkania wg. własnych preferencji oszczędzając czas i nerwy.
Okna drewniane nowszego typu z ekspozycją na południowy zachód i północny wschód co zapewnia komfort przez cały rok i dobre nasłonecznienie.
Dodatkowym atutem jest bardzo duża piwnica 10 m2 oraz loggia 1,8 m2.
Oferta dostępna tylko w naszym biurze!
Zapraszam na prezentację.
Grzegorz Kozłowski
Niniejsze ogłoszenie nie stanowi oferty w rozumieniu Kodeksu Cywilnego, lecz ma charakter informacyjny. Przedstawione wizualizacje i grafiki mają charakter wyłącznie poglądowy i stanowią wyłącznie materiał pomocniczy, ułatwiający zorientowanie się w ogólnym wyglądzie oferowanej nieruchomości. Niniejsze ogłoszenie wraz z jego elementami jest własnością Północ Nieruchomości Sp z o.o. lub podmiotu współpracującego. Wszelkie prawa zastrzeżone. Kopiowanie, rozpowszechnianie oraz korzystanie z niniejszych materiałów w jakikolwiek inny sposób wykraczający poza dozwolony użytek określony przepisami ustawy z 4 lutego 1994 r. o prawie autorskim i prawach pokrewnych (Dz. U. 1994, nr 24 poz. 83 z późn. zm.) bez pisemnej zgody Północ Nieruchomości Sp z o.o. lub podmiotów współpracujących jest zabronione i może stanowić podstawę odpowiedzialności cywilnej oraz karnej. Niniejsze materiały stanowią tajemnicę przedsiębiorstwa PÓŁNOC NIERUCHOMOŚCI Sp. z o.o. w rozumieniu ustawy z dnia 16 kwietnia 1993 r. o zwalczaniu nieuczciwej konkurencji (Dz. U. z 2003 r., Nr 153, poz. 1503 z późn. zm.). Oferta wysłana z programu dla biur nieruchomości ASARI CRM (asaricrm.com)
Numer oferty: 124144/3877/OMS
Mieszkanie położone jest na czwartym piętrze w niskim bloku z cegły po termomodernizacji i odnowionymi klatkami schodowymi.
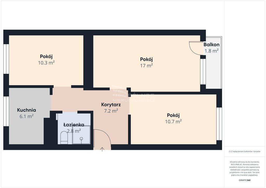
Na powierzchni 56,30 m² znajdują się:
- 3 ustawne pokoje - 17 m2, 10,7 m2, 10,3 m2
- oddzielna kuchnia - 6,1 m2
- łazienka z prysznicem - 2,8 m2
- przedpokój
Wszystkie najtrudniejsze i najbardziej uciążliwe prace zostały już wykonane. Położono nową instalację elektryczną i wodno – kanalizacyjną oraz C.O., wykonano nowe tynki, pomalowano ściany i sufity, zamontowano oświetlenie oraz położono płytki w łazience oraz zamontowano brodzik do kabiny prysznicowej.
Do zrobienia zostało:
- ułożyć podłogi
- wykończyć kuchnię i łazienkę
- zamontować drzwi
- umeblować
- zamieszkać i cieszyć się własnym mieszkaniem
Taki stan rzeczy sprawia, że możesz już idealnie dopasować resztę wyglądu i wystroju mieszkania wg. własnych preferencji oszczędzając czas i nerwy.
Okna drewniane nowszego typu z ekspozycją na południowy zachód i północny wschód co zapewnia komfort przez cały rok i dobre nasłonecznienie.
Dodatkowym atutem jest bardzo duża piwnica 10 m2 oraz loggia 1,8 m2.
Oferta dostępna tylko w naszym biurze!
Zapraszam na prezentację.
Grzegorz Kozłowski
Niniejsze ogłoszenie nie stanowi oferty w rozumieniu Kodeksu Cywilnego, lecz ma charakter informacyjny. Przedstawione wizualizacje i grafiki mają charakter wyłącznie poglądowy i stanowią wyłącznie materiał pomocniczy, ułatwiający zorientowanie się w ogólnym wyglądzie oferowanej nieruchomości. Niniejsze ogłoszenie wraz z jego elementami jest własnością Północ Nieruchomości Sp z o.o. lub podmiotu współpracującego. Wszelkie prawa zastrzeżone. Kopiowanie, rozpowszechnianie oraz korzystanie z niniejszych materiałów w jakikolwiek inny sposób wykraczający poza dozwolony użytek określony przepisami ustawy z 4 lutego 1994 r. o prawie autorskim i prawach pokrewnych (Dz. U. 1994, nr 24 poz. 83 z późn. zm.) bez pisemnej zgody Północ Nieruchomości Sp z o.o. lub podmiotów współpracujących jest zabronione i może stanowić podstawę odpowiedzialności cywilnej oraz karnej. Niniejsze materiały stanowią tajemnicę przedsiębiorstwa PÓŁNOC NIERUCHOMOŚCI Sp. z o.o. w rozumieniu ustawy z dnia 16 kwietnia 1993 r. o zwalczaniu nieuczciwej konkurencji (Dz. U. z 2003 r., Nr 153, poz. 1503 z późn. zm.). Oferta wysłana z programu dla biur nieruchomości ASARI CRM (asaricrm.com)
Numer oferty: 124144/3877/OMS
Statystyki ogłoszenia:
Podobne nieruchomości