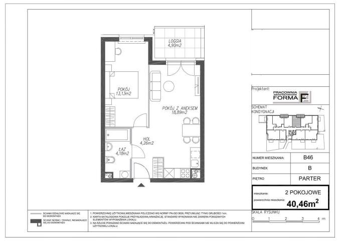
ico powierzchnia

POWIERZCHNIA

41,00 m2

ico pietro

PIĘTRO

2

ico liczba pokoi

LICZBA POKOI

2

ico parking

PARKING

-

Szczegóły oferty 105471

  • Kategoria Mieszkania na sprzedaż
  • Lokalizacja mazowieckie, Warszawa, Wawer, Międzylesie, Zwoleńska
  • Powierzchnia całkowita41 m2
  • Cena

    574 000 zł

    Reklama ico Sprawdź ratę Sprawdź ratę RSSO 6,71%
    na dz. 24.11.25
    trade ico trade ico trade
  • Cena za m2 14 000 zł/m2
  • Liczba pokoi 2
  • Piętro 2
  • Typ budynkuapartamentowiec
  • Rok budowy 2025
  • Forma własności własność
  • Materiał cegła
  • Kuchniaaneks
Informacje dodatkowe:
balkon, ogrzewanie miejskie

Lokalizacja

Warszawa, Wawer, Międzylesie, Zwoleńska

Opis oferty

Nowe budownictwo

KUPUJĄCY NIE PŁACI WYNAGRODZENIA POŚREDNIKA, ZAKUP OD DEWELOPERA

ZAKUP BEZ PODATKU PCC (2%)

A Osiedle realizowane w dzielnicy Wawer słynącej z dużej ilości zieleni i bliskości terenów rekreacyjnych, składa się z dwóch kameralnych, trzypiętrowych budynków zaprojektowanych z myślą o komforcie mieszkańców - windy obsługują wszystkie piętra łącznie z garażem podziemnym a w częściach wspólnych osiedla zaprojektowano również naziemne miejsca postojowe i plac zabaw dla dzieci.

Mieszkania w zróżnicowanych metrażach od 27,60 do 54,80 m2 - z możliwością łączenia, wyróżniają się doskonałą funkcjonalnością, a dzięki dużym oknom zapewniają naturalne doświetlenie większość mieszkań posiada widną kuchnię czyli możliwość wydzielenia kuchni z oknem. Prywatne ogródki przy mieszkaniach na parterze oraz przestronne balkony i loggie na piętrach zapewnią dodatkową przestrzeń rekreacyjną - idealne miejsca do wypoczynku.

To świetne miejsce do zamieszkania dla tych, którzy szukają połączenia natury z nowoczesną infrastrukturą, ceniąc sobie jednocześnie spokój i bliskość przyrody oraz wszystkich, którzy szukają ucieczki od zgiełku wielkiego miasta, nie rezygnując z jego wygód. W bliskiej odległości znajdują się przedszkola i szkoły, sklepy, supermarkety oraz lokalne targowiska, gdzie można zaopatrzyć się w świeże produkty. Osiedle jest dobrze skomunikowane z resztą Warszawy. Mieszkańcy mogą korzystać z oddalonych o 200m licznych linii autobusowych, a także pobliskiej stacji kolejowej Warszawa Międzylesie, która zapewnia dogodne połączenia z innymi dzielnicami Warszawy oraz podwarszawskimi miejscowościami. Bliskość arterii takich jak Trakt Lubelski i Wał Miedzeszyński pozwalają na szybki i wygodny dojazd do centrum miasta.

ORĄCO POLECAMY I ZAPRASZAMY DO OBEJRZENIA I ZAKUPU 

Jestem do Państwa dyspozycji 7 dni tygodniu.

Dominika Suchy Doradca ds. Nieruchomości www.onehouse.pl 

tel. kom.: +48 6pokaż telefon

Treść niniejszego ogłoszenia nie stanowi oferty handlowej w rozumieniu Kodeksu Cywilnego.

Oferta wysłana z programu IMO dla biur nieruchomości


Numer oferty: 105471
Nr licencji zawodowej: 19898

Statystyki ogłoszenia:

oko

Podobne nieruchomości