ico powierzchnia

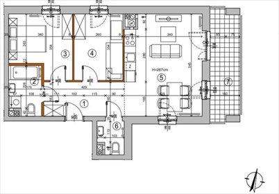
POWIERZCHNIA

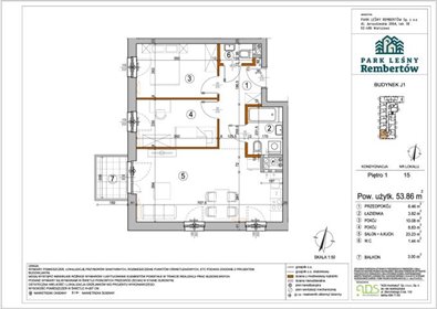
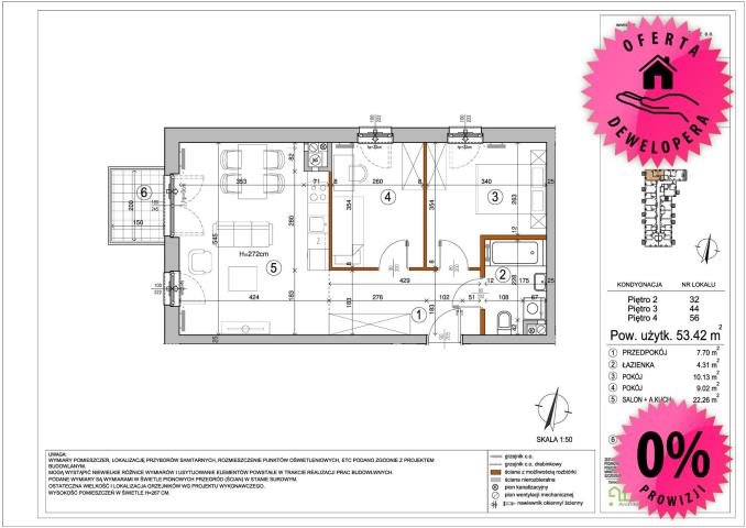
53,42 m2

ico pietro

PIĘTRO

1

ico liczba pokoi

LICZBA POKOI

2

ico parking

PARKING

garaż

Szczegóły oferty 100938

  • Kategoria Mieszkania na sprzedaż
  • Lokalizacja mazowieckie, Warszawa, Rembertów, Nowy Rembertów, Chełmżyńska
  • Powierzchnia całkowita53,42 m2
  • Cena

    608 000 zł

    Reklama ico Sprawdź ratę Sprawdź ratę RSSO 6,26% na dz. 16.02.26 trade ico trade ico trade
  • Cena za m2 11 381,51 zł/m2
  • Liczba pokoi 2
  • Piętro 1
  • Typ budynkuapartamentowiec
  • Rok budowy 2024
  • Forma własności własność
  • Materiał cegła
  • Kuchniaaneks
Informacje dodatkowe:
balkon, ogrzewanie miejskie, garaż

Lokalizacja

Warszawa, Rembertów, Nowy Rembertów, Chełmżyńska

Opis oferty

IV kwartał 2024 Bezpośrednio od dewelopera 

Nowe budownictwo

KUPUJĄCY NIE PŁACI WYNAGRODZENIA POŚREDNIKA, ZAKUP OD DEWELOPERA

ZAKUP BEZ PODATKU PCC (2%)

Metraż 53,42 m2 Liczba pokoi 3 Piętro 1 Cena 608 000 zł Termin oddania 2024-12-31

Dodatkowo

-cena brutto m. p. w garażu podziemnym: 35 000 - 55 000

-cena brutto 1 m2 komórki lokatorskiej: 3 000 zł

Możliwości aranżacyjne

-wysokość pomieszczeń: 2.67 m

-strony światła: płd., zach

Stan mieszkania

-deweloperski

-okna: PCV

Obecnie w sprzedaży mieszkania 2 pokojowe 34-39 m2 i 3 pokojowe 55-56 m2

Budynek

-liczba poziomów garażu podziemnego: -1

-dodatkowe: winda, instalacje internetowe, instalacje tv, m. p. w garażu podziemnym

-przestronne lokale użytkowe w stanie surowym z dużymi, przejrzystymi witrynami, znajdujące się w parterach naszych budynków

Osiedle

-nowoczesne osiedle położone na obrzeżach Warszawy

-liczne tereny zielone i sąsiedztwo lasu rembertowskiego

-na terenie powstanie strefa sportowa i plac zabaw

-osiedle znajduje się przy ulicy Chełmżyńskiej tuż obok lasu Rembertowskiego nazywanego wschodnim płucem Warszawy.

-leśna oaza, otoczona bujną zielenią, w której życie staje się spokojne i komfortowe

-osiedle gdzie odnajdziesz wewnętrzną harmonię, a jeżeli zabraknie Ci miejskiego szumu to w zaledwie 20 minut dojedziesz do samego serca wesołego Warszawskiego zgiełku

Stan prawny

-pełna własność

Lokalizacja

-Warszawa, Rembertów, Chełmżyńska

-sprawną komunikację między Rembertowem a centrum stolicy zapewniają linie Szybkiej Kolei Miejskiej (podróż trwa zaledwie 15 minut)

-w pobliżu : sklep, żłobek, restauracja, siłownia, szkoła, poczta

Zapewniamy wsparcie i opiekę w procesie kupna-sprzedaży oraz pomoc przy uzyskaniu najkorzystniejszego kredytu na rynku.

Jeśli zainteresowała Cię ta oferta, zadzwoń i umów się na prezentację!!!

GORĄCO POLECAMY I ZAPRASZAMY DO OBEJRZENIA I ZAKUPU 

Jestem do Państwa dyspozycji 7 dni w tygodniu. 

OneHouse nieruchomości 

Agnieszka Prasek 

Broker ds. Nieruchomości 

licencja numer 19898 

www.onehouse.pl 

tel. kom.: +48 6pokaż telefon

Treść niniejszego ogłoszenia nie stanowi oferty handlowej w rozumieniu Kodeksu Cywilnego.

Oferta wysłana z programu IMO dla biur nieruchomości


Numer oferty: 100938
Nr licencji zawodowej: 19898

Statystyki ogłoszenia:

oko

Podobne nieruchomości