ico powierzchnia

POWIERZCHNIA

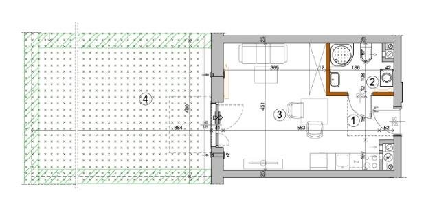
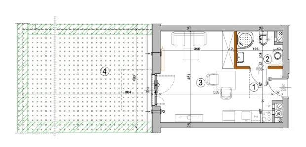
33,00 m2

ico pietro

PIĘTRO

parter / 5

ico liczba pokoi

LICZBA POKOI

2

ico parking

PARKING

garaż

Szczegóły oferty 105962

  • Kategoria Mieszkania na sprzedaż
  • Lokalizacja mazowieckie, Warszawa, Rembertów, Nowy Rembertów, Chełmżyńska
  • Powierzchnia całkowita33 m2
  • Cena

    465 000 zł

    Reklama ico Sprawdź ratę Sprawdź ratę RSSO 6,71%
    na dz. 24.11.25
    trade ico trade ico trade
  • Cena za m2 14 090,91 zł/m2
  • Liczba pokoi 2
  • Piętro Parter
  • Liczba pięter w budynku 5
  • Typ budynkuapartamentowiec
  • Rok budowy 2025
  • Forma własności własność
  • Materiał cegła
  • Kuchniaaneks
Informacje dodatkowe:
balkon, ogrzewanie miejskie, garaż

Lokalizacja

Warszawa, Rembertów, Nowy Rembertów, Chełmżyńska

Opis oferty

0% PROWIZJI!! Inwestycja od dewelopera, bez PCC 2%.

Wysokość pomieszczeń:2.67

Cena brutto m. p. w garażu podziemnym: 35 000 - 55 000

Liczba poziomów garażu podziemnego: -1

Cena brutto m2 komórki lokatorskiej: 3 000 zł

Dodatkowe: winda, instalacje internetowe, instalacje tv, m. p. w garażu podziemnym

Osiedle jest nnowoczesnym osiedlem położonym w warszawskim Rembertowie, przy ulicy Chełmżyńskiej. 

Największą ambicją było stworzenie dobrego miejsca na złapanie oddechu od szybkiego tempa i hałasu dużego miasta. Ponadto inwestycję wyróżniają następujące elementy:

- standard premium

- strefa sportowa

- place zabaw

- sąsiedztwo rembertowskiego lasu

- liczne sklepy, szkoły i przystanki autobusowe

- zamknięte osiedle

Ilość pięter: 5 

Miejscowość: Warszawa

Dzielnica: Rembertów

Ulica: Chełmżyńska

Ogrzewanie: miejskie

Czynsz za metr: 8,00 PLN

Forma własności gruntu:użytkowanie wieczyste

Rodzaj stolarki okiennej: PCV

Miejsce postojowe-miejsce pojedyncze w hali garażowej:(Nieobowiązkowe) 35 000 PLN

-miejsce rodzinne w hali garażowej:55 000 PLN

-miejsce zewnętrzne:25 000 PLN

GORĄCO POLECAMY I ZAPRASZAMY DO OBEJRZENIA I ZAKUPU 

Jestem do Państwa dyspozycji 7 dni w tygodniu. 

Dominika Suchy 

www.onehouse.pl 

tel. kom.: +48 6pokaż telefon

Treść niniejszego ogłoszenia nie stanowi oferty handlowej w rozumieniu Kodeksu Cywilnego.

Oferta wysłana z programu IMO dla biur nieruchomości


Numer oferty: 105962
Nr licencji zawodowej: 19898

Statystyki ogłoszenia:

oko

Podobne nieruchomości