Nowe 2-pokojowe mieszkanie w Pradze-Północ, bez PCC Warszawa, Praga-Północ, Golędzinów, Jagiellońska - 39,0m2
POWIERZCHNIA
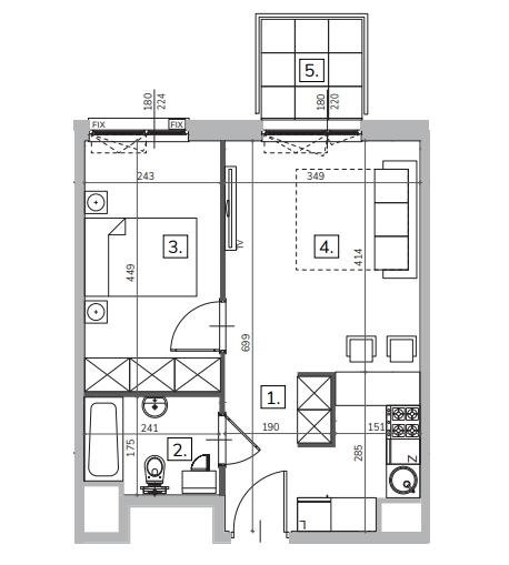
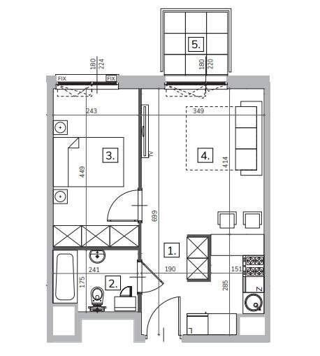
39,00 m2
PIĘTRO
2
LICZBA POKOI
2
PARKING
garaż
Szczegóły oferty 105099
- Kategoria Mieszkania na sprzedaż
- Lokalizacja mazowieckie, Warszawa, Praga-Północ, Golędzinów, Jagiellońska
- Powierzchnia całkowita39 m2
-
Cena
630 000 zł
- Cena za m2 16 153,85 zł/m2
- Liczba pokoi 2
- Piętro 2
- Typ budynkuapartamentowiec
- Rok budowy 2026
- Forma własności własność
- Materiał cegła
- Kuchniaaneks
- Informacje dodatkowe:
- balkon, ogrzewanie miejskie, garaż
Lokalizacja
Opis oferty
Nowe budownictwo
KUPUJĄCY NIE PŁACI WYNAGRODZENIA POŚREDNIKA, ZAKUP OD DEWELOPERA
ZAKUP BEZ PODATKU PCC (2%)
cena od: 604 668,37 PLN do 1 162 349,22 PLNPowierzchnia: od 33,74 m2 do 79,43 m2
W odległości zaledwie kilkuset metrów znajdują się sklep i galeria handlowa. Blisko stąd także do renomowanych prywatnych uczelni i restauracji. np Akademii Koźmińskiego
oskonała komunikacja z sercem miasta, a zarazem łatwy wyjazd z aglomeracji to bezwzględny wymóg współczesności. Wybierz Livin Praga i zamieszkaj blisko centrum Warszawy, by móc w pełni korzystać z miejskich udogodnień i komunikacyjnej infrastruktury. Sąsiedztwo linii tramwajowych i autobusowych, a także doskonały dojazd do drogi ekspresowej S8, to gwarancja szybkiego dojazdu na lewy brzeg Wisły i do odleglejszych dzielnic Warszawy.
GORĄCO POLECAMY I ZAPRASZAMY DO OBEJRZENIA I ZAKUPU
Jestem do Państwa dyspozycji 7 dni tygodniu.
Dominika Suchy Doradca ds. Nieruchomości www.onehouse.pl
tel. kom.: +48 6pokaż telefon dominikaskontaktuj się
Treść niniejszego ogłoszenia nie stanowi oferty handlowej w rozumieniu Kodeksu Cywilnego.
Oferta wysłana z programu IMO dla biur nieruchomości
Numer oferty: 105099
Nr licencji zawodowej: 19898
Statystyki ogłoszenia:
Podobne nieruchomości