ico powierzchnia

POWIERZCHNIA

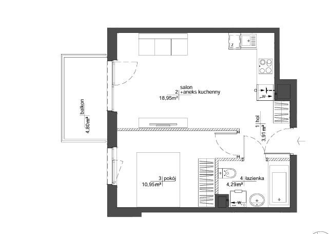
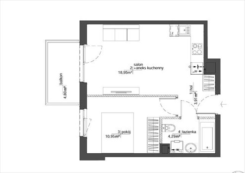
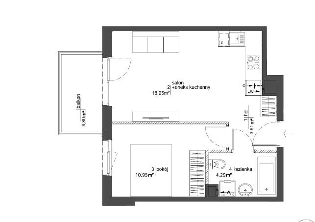
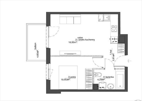
39,00 m2

ico pietro

PIĘTRO

1 / 5

ico liczba pokoi

LICZBA POKOI

2

ico parking

PARKING

garaż

Szczegóły oferty 105970

  • Kategoria Mieszkania na sprzedaż
  • Lokalizacja mazowieckie, Warszawa, Mokotów, Dolny Mokotów, Antoniewska
  • Powierzchnia całkowita39 m2
  • Cena

    604 000 zł

    Reklama ico Sprawdź ratę Sprawdź ratę RSSO 6,71%
    na dz. 24.11.25
    trade ico trade ico trade
  • Cena za m2 15 487,18 zł/m2
  • Liczba pokoi 2
  • Piętro 1
  • Liczba pięter w budynku 5
  • Typ budynkuapartamentowiec
  • Rok budowy 2025
  • Forma własności własność
  • Materiał cegła
  • Kuchniaaneks
Informacje dodatkowe:
balkon, ogrzewanie miejskie, garaż

Lokalizacja

Warszawa, Mokotów, Dolny Mokotów, Antoniewska

Opis oferty

0% PROWIZJI!! Inwestycja od dewelopera, bez PCC 2%.

Posiadamy również inne mieszkania w tej inwestycji

Zapraszamy Państwa do zapoznania się z naszą ofertą

Cena od: 463 083,00 PLN do 1 316 720,00 PLN

Powierzchnia: od 28,38 m2 do 88,83 m2Termin oddania: od II kwartał 2026

WW ramach projektu wybudujemy nowoczesne, otoczone zielenią, osiedle w wysokim standardzie, bogate w wiele udogodnień i innowacji wspierających ochronę środowiska. Jego wyróżnikiem będzie indywidualnie zaprojektowany mural wykonany farbami antysmogowymi. Na osiedlu nie zabraknie stacji ładowania samochodów elektrycznych i stojaków na rowery. Do dyspozycji mieszkańców oddamy również strefę fitness, pokój jogi, place zabaw dla dzieci i klub malucha. Zapraszamy Państwa do zapoznania się z naszą nową inwestycją i zachęcamy do zakupu mieszkania.

Bogata infrastruktura, dobra komunikacja oraz obecność licznych szkół, przedszkoli i żłobków sprawiają, że jest to dzielnica chętnie wybierana przez rodziny z dziećmi. Codzienne sprawunki ułatwiają liczne sklepy oraz galerie handlowe, nie brakuje też atrakcji dla dzieci- nowoczesnych placów zabaw i ścieżek rowerowych. Dzielnica posiada bogatą ofertę kulturalną- znajdziesz tu teatry, kina i muzea.

Zapewniamy wsparcie i opiekę w procesie kupna-sprzedaży oraz pomoc przy uzyskaniu najkorzystniejszego kredytu na rynku.

Jeśli zainteresowała Cię ta oferta, zadzwoń i umów się na prezentację!!!

GORĄCO POLECAMY I ZAPRASZAMY DO OBEJRZENIA I ZAKUPU 

Jestem do Państwa dyspozycji 7 dni tygodniu.

Dominika Suchy Doradca ds. Nieruchomości www.onehouse.pl 

tel. kom.: +48 6pokaż telefon

Treść niniejszego ogłoszenia nie stanowi oferty handlowej w rozumieniu Kodeksu Cywilnego.

Oferta wysłana z programu IMO dla biur nieruchomości


Numer oferty: 105970
Nr licencji zawodowej: 19898

Statystyki ogłoszenia:

oko

Podobne nieruchomości