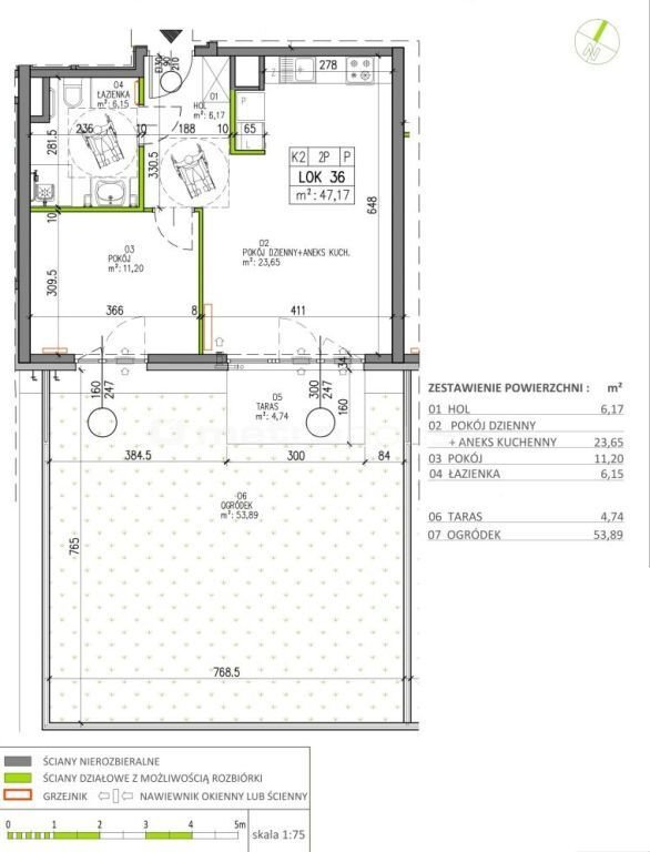
Nowoczesne 2-pokojowe mieszkanie z balkonem i ogródkiem Warszawa, Białołęka - 47,17m2
POWIERZCHNIA
47,17 m2
PIĘTRO
parter / 5
LICZBA POKOI
2
PARKING
-
Szczegóły oferty PR022431/LK/49148 Data dodania: dzisiaj
- Kategoria Mieszkania na sprzedaż
- Lokalizacja mazowieckie, Warszawa, Białołęka
- Powierzchnia całkowita47,17 m2
-
Cena
665 097 zł
- Cena za m2 14 100 zł/m2
- Liczba pokoi 2
- Piętro Parter
- Liczba pięter w budynku 5
- Dostępne od18.02.2026r.
- Typ budynkuinny
- Materiał silikat
- Informacje dodatkowe:
- taras, balkon, ogrzewanie miejskie
Lokalizacja
Opis oferty
Nowoczesny projekt obejmujący 159 mieszkań oraz 2 lokale usługowe, realizowany na warszawskim Żeraniu. W ofercie dostępne będą lokale o różnorodnych powierzchniach – od 35 do 93 m², w układach od 1 do 4 pokoi. Mieszkania wyposażono w przestronne balkony, loggie, tarasy, a na parterze zaplanowano duże ogródki. Wysokość pomieszczeń będzie sięgać od ok. 273 do 295 cm. Na poziomie podziemnym znajdą się miejsca postojowe oraz komórki lokatorskie. Żerań to idealna lokalizacja dla osób ceniących wygodę życia, bliskość natury i szybki dostęp do wszystkiego, co oferuje miasto. Osiedle doskonale harmonizuje z otoczeniem dzielnicy. Starannie dobrane materiały, estetyczne detale i elegancka, ponadczasowa architektura tworzą spójną, stylową przestrzeń. Zieleń wokół budynku sprzyja codziennemu kontaktowi z naturą, a pobliskie tereny rekreacyjne Białołęki oferują miejsce do odpoczynku i aktywnego spędzania czasu..
Czy wiesz, że możemy przygotować dla Ciebie prezentację on-line nieruchomości? Skontaktuj się z naszym Agentem i zapytaj o szczegóły.
Pomimo, iż Doradcy Metrohouse przykładają szczególną staranność do rzetelnego prezentowania informacji o nieruchomości, nie zawsze jest możliwa weryfikacja wszystkich danych przekazanych od osób trzecich. Niniejsza prezentacja oferty nie jest ofertą w rozumieniu Kodeksu Cywilnego i ma charakter wyłącznie informacyjny.
Numer oferty: PR022431/LK/49148
Statystyki ogłoszenia:
Podobne nieruchomości