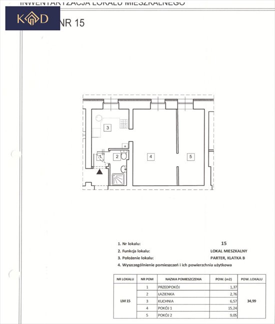
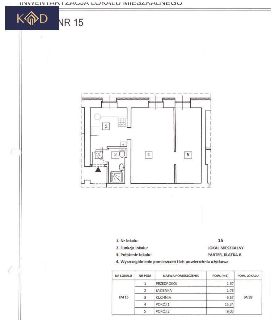
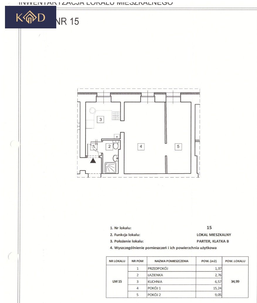
2-pokojowe mieszkanie na Wildzie z piwnicą i szybkim dojazdem Poznań, Wilda, Jana Umińskiego - 35,0m2
Oferta na wyłączność
371 000 zł 10 600 zł/m2POWIERZCHNIA
35,00 m2
PIĘTRO
parter / 4
LICZBA POKOI
2
PARKING
-
Szczegóły oferty 457438
- Kategoria Mieszkania na sprzedaż
- Lokalizacja wielkopolskie, Poznań, Wilda, Jana Umińskiego
- Powierzchnia całkowita35 m2
-
Cena
371 000 zł
- Cena za m2 10 600 zł/m2
- Liczba pokoi 2
- Piętro Parter
- Liczba pięter w budynku 4
- Typ budynkuinny
- Forma własności Własność
- Informacje dodatkowe:
- piwnica
Lokalizacja
Opis oferty
Na sprzedaż mieszkanie 2 pokojowe o powierzchni 35 m2 przy ulicy Umińskiego na Wildzie.
Mieszkanie znajduje się na parterze w kamienicy.
Ogrzewanie gazowe (piec dwufunkcyjny).
Do lokalu przynależy piwnica.
Atutem mieszkania jest lokalizacja, z której łatwo i szybko dostać się do centrum miasta, na dworzec PKP, do galerii Avenida czy Starego Browaru.
Sklepy - Żabka i Biedronka, apteki, usługi.
Żłobek, szkoła i przedszkole w promieniu 200 m.
Wilda jest dzielnicą lubianą za dużą ilość restauracji i przyjemnych kawiarni.
Mieszkanie idealne na zakup pod wynajem.
Ulica Umińskiego po remoncie:
https://www.youtube.com/watch?v=ZY_WFJIBlcU
Numer oferty: 457438
Mieszkanie znajduje się na parterze w kamienicy.
Ogrzewanie gazowe (piec dwufunkcyjny).
Do lokalu przynależy piwnica.
Atutem mieszkania jest lokalizacja, z której łatwo i szybko dostać się do centrum miasta, na dworzec PKP, do galerii Avenida czy Starego Browaru.
Sklepy - Żabka i Biedronka, apteki, usługi.
Żłobek, szkoła i przedszkole w promieniu 200 m.
Wilda jest dzielnicą lubianą za dużą ilość restauracji i przyjemnych kawiarni.
Mieszkanie idealne na zakup pod wynajem.
Ulica Umińskiego po remoncie:
https://www.youtube.com/watch?v=ZY_WFJIBlcU
Numer oferty: 457438
Statystyki ogłoszenia:
Podobne nieruchomości