ico powierzchnia

POWIERZCHNIA

97,29 m2

ico pietro

PIĘTRO

1 / 3

ico liczba pokoi

LICZBA POKOI

4

ico parking

PARKING

miejsce parkingowe

Szczegóły oferty 863004 Data dodania: dzisiaj

  • Kategoria Mieszkania na sprzedaż
  • Lokalizacja mazowieckie, Piastów, Stanisława Bodycha
  • Powierzchnia całkowita97,29 m2
  • Cena

    1 128 564 zł

    Reklama ico Sprawdź ratę Sprawdź ratę RSSO 6,07% na dz. 20.04.26 trade ico trade ico trade
  • Czynsz administracyjny

    1 296 zł

  • Cena za m2 11 600 zł/m2
  • Liczba pokoi 4
  • Piętro 1
  • Liczba pięter w budynku 3
  • Typ budynkublok
  • Rok budowy 2024
  • Materiał cegła
Informacje dodatkowe:
winda, miejsce parkingowe, balkon
Okolica:
park, las, apteka, autobus, pkp, kolej podmiejska, przedszkole, żłobek

Lokalizacja

Piastów, Stanisława Bodycha

Opis oferty

Zakup bez PCC i prowizji dla biura nieruchomości.

Mam przyjemność przedstawić Państwu 4-pokojowe  mieszkanie o powierzchni 97,29 mkw. położone na parterze nowo wybudowanego, kameralnego budynku przy ulicy Bodycha 122.


Mieszkanie, mimo swojej bliskości do węzłów komunikacyjnych, pozostaje miejscem cichym, idealnym do odpoczynku po pracy. Mieszkanie ma okna na północny zachód, dzięki czemu pozostaje fantastycznie doświetlone. Zakup idealny dla pary, rodziny, a także jako zakup inwestycyjny.

Lokalizacja
Mieszkanie znajduje się w Piastowie, tuż przy granicy z warszawską dzielnicą Ursus. Okolica oferuje doskonałe połączenie spokoju przedmieścia z łatwym dostępem do infrastruktury miejskiej. W najbliższym otoczeniu znajdują się liczne sklepy, szkoły, apteki oraz punkty usługowe, co zapewnia wygodę codziennego życia.

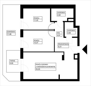
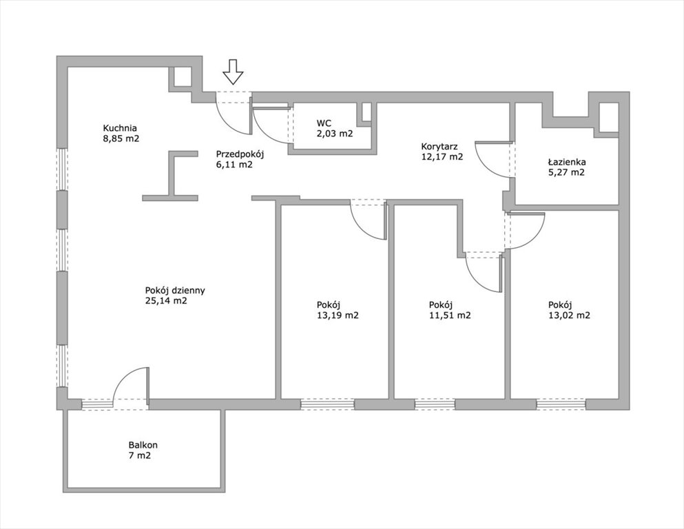
Układ lokalu:

  • Salon z aneksem kuchennym 33,99 mkw.
  • Pokój 13,19 mkw.
  • Pokój 11,51 mkw.
  • Pokój 13,02 mkw.
  • Łazienka 5,24 mkw.
  • Korytarz 12,17mkw.
  • WC 2,03 mkw.
  • Przedpokój 6,11 mkw.
Do mieszkania przynależy miejsce postojowe w garażu podziemnym dodatkowo płatne oraz komórka lokatorska zakup nie obowiązkowy.

Mieszkanie w stanie deweloperskim, co pozwala na dowolną aranżację wnętrz według własnych upodobań.

Budynek i Wyposażenie:
Budynek został wykonany z materiałów najwyższej jakości, takich jak stal nierdzewna, spieki kwarcowe, płyty HPL. Każde mieszkanie wyposażone jest w światłowód, zapewniający szybki internet oraz domofon z opcją zamiany na videofon. Drzwi wejściowe do mieszkań z możliwością zmiany kolorystyki wewnątrz lokalu, co pozwala na personalizację przestrzeni.

Teren wokół budynku jest ogrodzony i monitorowany, co gwarantuje bezpieczeństwo i prywatność mieszkańców.

Okolica
W najbliższym otoczeniu bloku znajdują się liczne punkty usługowe, apteka, przychodnia, biblioteka, sklepy, szkoły, przedszkola czy żłobki. 5 minuty pieszo znajduje się supermarket znanej sieci. W Ursusie znajdują się również znane i lubiane centra handlowe. Szybki dojazd do stacji kolei podmiejskiej zapewnia autobus.

Na terenie osiedla znajduje się plac zabaw dla dzieci, publiczne Przedszkole nr 413, boisko do koszykówki i piłki nożnej, siłownia na świeżym powietrzu oraz sklepy.

Mieszkanie dobrze skomunikowane, przy pętli autobusowej - linie: 191, 217, w odległości 1 km PKP Ursus Niedźwiadek z szybkim wjazdem na S2/S8.

STAN PRAWNY NIERUCHOMOŚCI
Mieszkanie własnościowe z księgą wieczystą.

Zakup bez PCC i prowizji dla biura nieruchomości. W ofercie posiadamy różne układy mieszkań oraz wielkości.

Jeśli zainteresowało Państwa to rewelacyjne mieszkanie w fantastycznej okolicy, to zapraszam na prezentację!

Jakub Figielski
tel. 536pokaż telefon

Powyższa oferta ma charakter informacyjny i nie stanowi oferty handlowej w rozumieniu art. 66 §1 Kodeksu Cywilnego.

Kompleksowa obsługa nieruchomości: sprzedaż, wynajem, kredyt i zarządzanie - wszystko w jednym miejscu- zadzwoń i sprawdź naszą ofertę. 


Numer oferty: 863004
Osoba odpowiedzialna zawodowo: Jakub Figielski

Statystyki ogłoszenia:

oko

Podobne nieruchomości