Nowoczesny apartament 3 stron, balkon, garderoba, garaż Łódź, Płocka 4 - 80,6m2
Oferta na wyłączność
628 680 zł 7 800 zł/m2POWIERZCHNIA
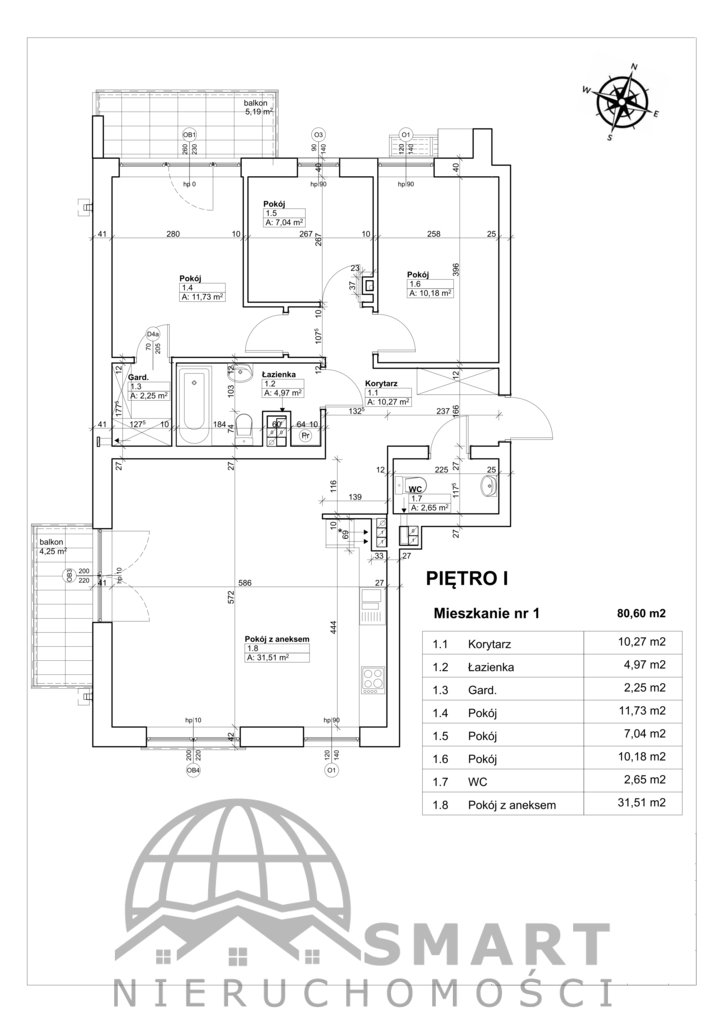
80,60 m2
PIĘTRO
1 / 3
LICZBA POKOI
4
PARKING
miejsce parkingowe
Szczegóły oferty 59/16901/OMS
- Kategoria Mieszkania na sprzedaż
- Lokalizacja łódzkie, Łódź, Płocka 4
- Powierzchnia całkowita80,60 m2
-
Cena
628 680 zł
-
Czynsz administracyjny
450 zł
- Cena za m2 7 800 zł/m2
- Liczba pokoi 4
- Piętro 1
- Liczba pięter w budynku 3
- Typ budynkublok
- Rok budowy 2024
- Forma własności własność
- Materiał inny
- Kuchniaz oknem
- Informacje dodatkowe:
- ogrzewanie centralne, miejsce parkingowe
- Okolica:
- szkoła, przedszkole, park
Lokalizacja
Opis oferty
0% PCC. Klucze na już. 0% prowizji.
W centrum Łodzi czeka na Ciebie atrakcyjny dwustronny apartament z dwoma balkonami oraz garderobą (możliwość dokupienia dużego garażu). Bardzo dobrze skomunikowana lokalizacja która zarazem jest osłonięta od hałasu miasta. ToTu Płocka to nie łódzki "mrówkowiec", to kameralny budynek z kilkunastoma mieszkaniami. Przemyślany rozkład, wysokiej klasy materiały budowlane aby wygodnie i komfortowo zamieszkać. Zamykane podwórze gwarantuje Ci prywatność i bezpieczeństwo. Klucze już do odbioru, brak podatku PCC, możliwość faktury VAT.
Dla naszych klientów pakiet na wykończenie mieszkania. "Projekt Twoich marzeń" wraz z rabatem 10% na materiały zakupione w OBI.
Funkcjonalny apartament na trzy strony świata. Salon z aneksem kuchennym, 3 sypialnie, garderoba, oddzielna łazienka i toaleta, dwa balkony. Mieszkanie znajduje się na 1 piętrze. Do lokalu można dokupić zewnętrzne miejsce postojowe na ogrodzonym terenie bezpośrednio przed klatką schodową lub prawdziwy garaż (około 15 m2). Koszt odpowiednio to: 20 tys. lub 80 tys. złotych.
Oprócz oczywistych zalet samego mieszkania (bezpieczeństwo, rozkład, komfort, jakość) oferujemy Ci wyjątkowo łatwy dostęp do wszystkich wygód miasta. Sklepy, oświata, rozrywka wszystko w promieniu 1km. Tereny zielone także w zasięgu spaceru.
Jeśli szukasz mieszkania w wygodnej lokalizacji, w nowym budynku, to właśnie znalazłeś. Jeśli głównie zależy Ci na komforcie i bezpieczeństwie to dzwoń już dzisiaj, ostatnie 5 mieszkań. Potrzebujesz innego? Mamy jeszcze metraże 40+m2 oraz 50+m2.
Zapraszam Rafał Nobis
Doradca do spraw nieruchomości
Smart Nieruchomości Łódź
Oferta wysłana z programu dla biur nieruchomości ASARI CRM (asaricrm.com)
Numer oferty: 59/16901/OMS
W centrum Łodzi czeka na Ciebie atrakcyjny dwustronny apartament z dwoma balkonami oraz garderobą (możliwość dokupienia dużego garażu). Bardzo dobrze skomunikowana lokalizacja która zarazem jest osłonięta od hałasu miasta. ToTu Płocka to nie łódzki "mrówkowiec", to kameralny budynek z kilkunastoma mieszkaniami. Przemyślany rozkład, wysokiej klasy materiały budowlane aby wygodnie i komfortowo zamieszkać. Zamykane podwórze gwarantuje Ci prywatność i bezpieczeństwo. Klucze już do odbioru, brak podatku PCC, możliwość faktury VAT.
Dla naszych klientów pakiet na wykończenie mieszkania. "Projekt Twoich marzeń" wraz z rabatem 10% na materiały zakupione w OBI.
Funkcjonalny apartament na trzy strony świata. Salon z aneksem kuchennym, 3 sypialnie, garderoba, oddzielna łazienka i toaleta, dwa balkony. Mieszkanie znajduje się na 1 piętrze. Do lokalu można dokupić zewnętrzne miejsce postojowe na ogrodzonym terenie bezpośrednio przed klatką schodową lub prawdziwy garaż (około 15 m2). Koszt odpowiednio to: 20 tys. lub 80 tys. złotych.
Oprócz oczywistych zalet samego mieszkania (bezpieczeństwo, rozkład, komfort, jakość) oferujemy Ci wyjątkowo łatwy dostęp do wszystkich wygód miasta. Sklepy, oświata, rozrywka wszystko w promieniu 1km. Tereny zielone także w zasięgu spaceru.
Jeśli szukasz mieszkania w wygodnej lokalizacji, w nowym budynku, to właśnie znalazłeś. Jeśli głównie zależy Ci na komforcie i bezpieczeństwie to dzwoń już dzisiaj, ostatnie 5 mieszkań. Potrzebujesz innego? Mamy jeszcze metraże 40+m2 oraz 50+m2.
Zapraszam Rafał Nobis
Doradca do spraw nieruchomości
Smart Nieruchomości Łódź
Oferta wysłana z programu dla biur nieruchomości ASARI CRM (asaricrm.com)
Numer oferty: 59/16901/OMS
Statystyki ogłoszenia:
Podobne nieruchomości