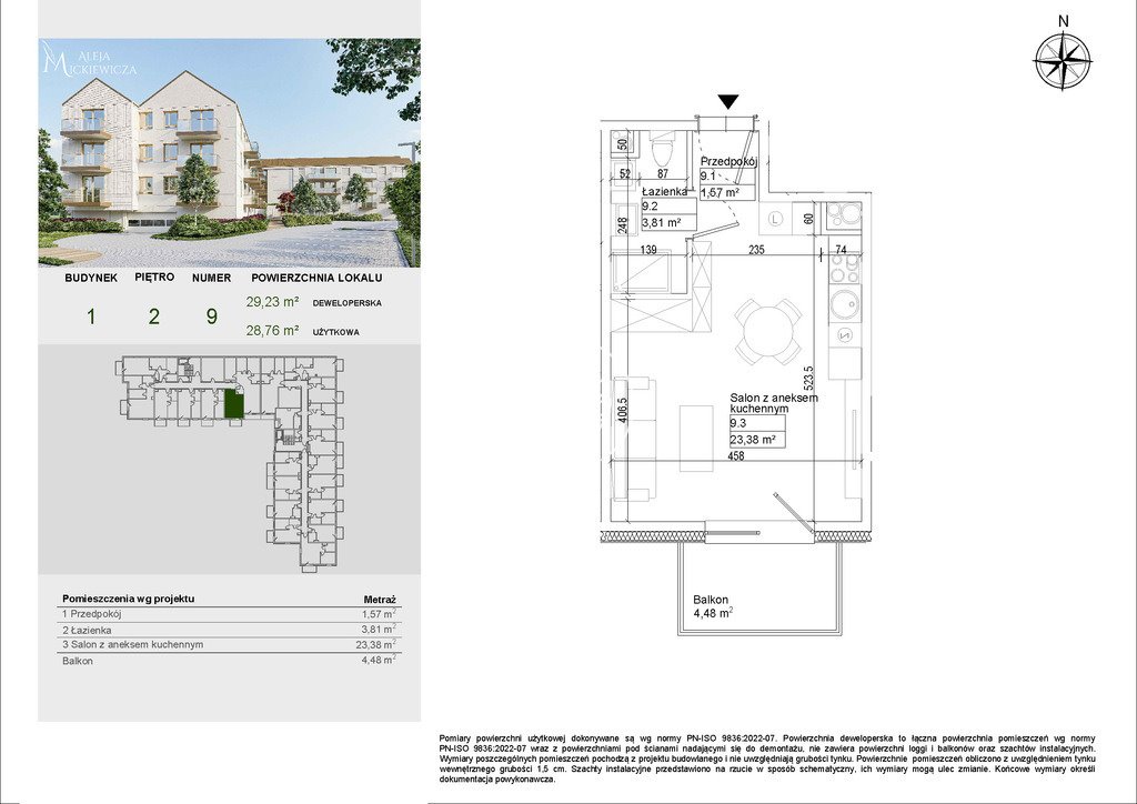
ico powierzchnia

POWIERZCHNIA

28,76 m2

ico pietro

PIĘTRO

2 / 3

ico liczba pokoi

LICZBA POKOI

1

ico parking

PARKING

-

Szczegóły oferty 15180/14150/OMS Data dodania: wczoraj

  • Kategoria Mieszkania na sprzedaż
  • Lokalizacja kujawsko-pomorskie, Osielsko, Aleja Adama Mickiewicza
  • Powierzchnia całkowita28,76 m2
  • Cena

    287 600 zł

    Reklama ico Sprawdź ratę Sprawdź ratę RSSO 6,26% na dz. 16.02.26 trade ico trade ico trade
  • Cena za m2 10 000 zł/m2
  • Liczba pokoi 1
  • Piętro 2
  • Liczba pięter w budynku 3
  • Dostępne od1.07.2027r.
  • Typ budynkublok
  • Rok budowy 2027
  • Materiał inny
Informacje dodatkowe:
winda, ogrzewanie centralne
Okolica:
przedszkole, las, park

Lokalizacja

Osielsko, Aleja Adama Mickiewicza

Opis oferty

Oferta wysłana z programu dla biur nieruchomości ASARI CRM (asaricrm.com)


Numer oferty: 15180/14150/OMS

Statystyki ogłoszenia:

oko

Podobne nieruchomości