Lokal użytkowy na sprzedaż Wrocław,
1 111 364 PLN
10 900 zł/m2
Opis
Więcej
Lokalizacja : Wrocław, Krzyki, Brochów, ul. Syryjska
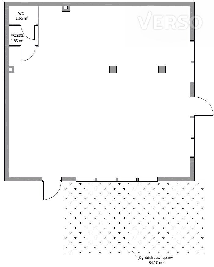
Opis : Na sprzedaż wyjątkowy narożny lokal użytkowy o powierzchni 101,96 m2 na parterze nowego budynku przy ulicy Syryjskiej z przynależnym ogródkiem.
Budynek oddany do użytku w 2024 roku Wysokość pomieszczeń to 3,5 m. Wystawa okien: południowy-wschód.
Ogrzewanie i woda miejska. Przygotowana instalacja pod montaż klimatyzacji. Wentylacja mechaniczna. Posadzki cementowe. Sufity ocieplane wełna mineralną.
Powierzchnie z możliwością elastycznej aranżacji: open space, gabinety, sale konferencyjne, własny aneks kuchenny i własny węzeł sanitarny.
Do lokalu przynależą 2 miejsca parkingowych zewnętrznych (za szlabanem) w cenie 40 000 zł brutto.
Możliwość umieszczenia reklamy na zewnętrznych oknach.
Miejscowy plan zagospodarowania przestrzennego przewiduje szeroki zakres funkcji m.in.: opieka nad dzieckiem, gastronomia, biura, handel detaliczny, pracownie artystyczne, poradnie i pracownie medyczne oraz zakłady lecznicze dla zwierząt czy produkcja drobna.
Najważniejsze informacje: Witryny od ulicy. Narożne usytuowanie lokalu. Okna PCV 3 szybowe.
Standard : winda, kontrola dostępu, światłowód, wentylacja mechaniczna, media miejskie. Klimatyzacja we własnym zakresie (wykonana instalacja).
Dla kogo oferta ? Placówki medyczne, biura, lokale usługowe, edukacja.
Cena : 1 111 364 PLN netto do negocjacji !!! Location: Wrocław, Krzyki, Brochów, ul. Syryjska
Description: For sale a unique corner commercial premises with an area of 101.96 m2 on the ground floor of a new building at Syryjska Street.
The building was commissioned in 2024. The height of the rooms is 3.5 m. Window exhibition: south-east.
Heating and city water. Prepared installation for air conditioning. Mechanical ventilation. Cement floors. Ceilings insulated with mineral wool.
Spaces with the possibility of flexible arrangement: open space, offices, conference rooms, own kitchenette and own sanitary unit.
The premises include 2 outdoor parking spaces (behind the barrier) at the price of PLN 40,000 gross.
Possibility of placing advertising on external windows.
The local spatial development plan envisages a wide range of functions, including: childcare, catering, offices, retail, art studios, medical clinics and laboratories, animal health facilities and small-scale production.
Key information: Shop windows facing the street. Corner location of the premises. Triple-glazed PVC windows.
Standard: elevator, access control, fiber optics, mechanical ventilation, city media. Air conditioning on your own (installation done).
Who is the offer for? Medical facilities, offices, service premises, education.
Price: PLN 1,111,364 net negotiable!!! Zobacz więcej na www.verso.com.pl | Verso Nieruchomości sp. z o.o. Biurowiec Corte Verona, II p. ul. Grabiszyńska 208, 53-235 Wrocław | Informacja zawarta w ogłoszeniu nie stanowi oferty handlowej w rozumieniu art. 66 Kodeksu Cywilnego. Oferta wysłana z programu dla biur nieruchomości ASARI CRM (asaricrm.com)
Opis : Na sprzedaż wyjątkowy narożny lokal użytkowy o powierzchni 101,96 m2 na parterze nowego budynku przy ulicy Syryjskiej z przynależnym ogródkiem.
Budynek oddany do użytku w 2024 roku Wysokość pomieszczeń to 3,5 m. Wystawa okien: południowy-wschód.
Ogrzewanie i woda miejska. Przygotowana instalacja pod montaż klimatyzacji. Wentylacja mechaniczna. Posadzki cementowe. Sufity ocieplane wełna mineralną.
Powierzchnie z możliwością elastycznej aranżacji: open space, gabinety, sale konferencyjne, własny aneks kuchenny i własny węzeł sanitarny.
Do lokalu przynależą 2 miejsca parkingowych zewnętrznych (za szlabanem) w cenie 40 000 zł brutto.
Możliwość umieszczenia reklamy na zewnętrznych oknach.
Miejscowy plan zagospodarowania przestrzennego przewiduje szeroki zakres funkcji m.in.: opieka nad dzieckiem, gastronomia, biura, handel detaliczny, pracownie artystyczne, poradnie i pracownie medyczne oraz zakłady lecznicze dla zwierząt czy produkcja drobna.
Najważniejsze informacje: Witryny od ulicy. Narożne usytuowanie lokalu. Okna PCV 3 szybowe.
Standard : winda, kontrola dostępu, światłowód, wentylacja mechaniczna, media miejskie. Klimatyzacja we własnym zakresie (wykonana instalacja).
Dla kogo oferta ? Placówki medyczne, biura, lokale usługowe, edukacja.
Cena : 1 111 364 PLN netto do negocjacji !!! Location: Wrocław, Krzyki, Brochów, ul. Syryjska
Description: For sale a unique corner commercial premises with an area of 101.96 m2 on the ground floor of a new building at Syryjska Street.
The building was commissioned in 2024. The height of the rooms is 3.5 m. Window exhibition: south-east.
Heating and city water. Prepared installation for air conditioning. Mechanical ventilation. Cement floors. Ceilings insulated with mineral wool.
Spaces with the possibility of flexible arrangement: open space, offices, conference rooms, own kitchenette and own sanitary unit.
The premises include 2 outdoor parking spaces (behind the barrier) at the price of PLN 40,000 gross.
Possibility of placing advertising on external windows.
The local spatial development plan envisages a wide range of functions, including: childcare, catering, offices, retail, art studios, medical clinics and laboratories, animal health facilities and small-scale production.
Key information: Shop windows facing the street. Corner location of the premises. Triple-glazed PVC windows.
Standard: elevator, access control, fiber optics, mechanical ventilation, city media. Air conditioning on your own (installation done).
Who is the offer for? Medical facilities, offices, service premises, education.
Price: PLN 1,111,364 net negotiable!!! Zobacz więcej na www.verso.com.pl | Verso Nieruchomości sp. z o.o. Biurowiec Corte Verona, II p. ul. Grabiszyńska 208, 53-235 Wrocław | Informacja zawarta w ogłoszeniu nie stanowi oferty handlowej w rozumieniu art. 66 Kodeksu Cywilnego. Oferta wysłana z programu dla biur nieruchomości ASARI CRM (asaricrm.com)
- Lokal użytkowy:
- na sprzedaż
- Powierzchnia całkowita:
- 101,96 m2
- Lokalizacja:
- województwo: dolnośląskie powiat: Wrocław gmina: Wrocław miejscowość: Wrocław