Atrakcyjne siedlisko 14,3 ha z domem i stajniami Otłoczyn - 143000,0m2
4 500 000
zł
31,47 zł/m2
POWIERZCHNIA
143 000 m2
RODZAJ DZIAŁKI
inwestycyjna
DROGA DOJAZDOWA
asfaltowa
Szczegóły
- Kategoria Działki i grunty na sprzedaż
- Lokalizacja kujawsko-pomorskie, Otłoczyn
-
Powierzchnia
całkowita 143 000 m2
Sprawdź MPZP
-
Cena
4 500 000 zł
- Cena za m2 31,47 zł/m2
- Dostępne od18.03.2025r.
- Rodzaj działki inwestycyjna
- Mediaprąd, woda
- Kanalizacjaszambo
- Droga dojazdowaasfaltowa
- Ogrodzenie działkimetalowe
- Okolica:
- las, niska zabudowa, park, pkp
Lokalizacja
Opis oferty
English version available below.
DO SPRZEDANIA:
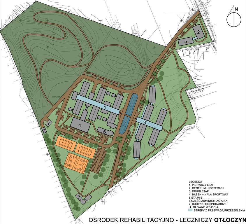
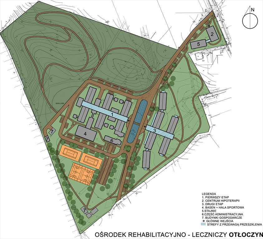
ATRAKCYJNE SIEDLISKO 14,3 ha, w skład którego wchodzą :
nowo wybudowany dom/ pensjonat o powierzchni ok. 430 m2 został zaprojektowany jako ośrodek hipoterapeutyczny lub rehabilitacyjny dla amatorów jazdy konnej i aktywnej rehabilitacji lub wypoczynku. Budynek, poza projektowanym przeznaczeniem, może zostać wykorzystany również jako dom mieszkalny.
stajnie z boksami dla koni. 560 m. Całość zabudowy, wraz z przyległymi terenami zielonymi, wybiegiem dla koni oraz wydzielonym miejscem do jazdy konnej, rozmieszczona jest na działkach gruntu o łącznej powierzchni 4,4 hektara.
Do nieruchomości przynależy również ok. 9,9 hektara powierzchni skalsyfikowanej jako grunty orne i lasy.
Teren nieruchomości uzbrojony jest w podstawowe media, wodę, prąd i kanalizację, instalację gazową.
Siedlisko zlokalizowane jest w miejscowości Otłoczyn, około 20 km od centrum Torunia i w odległości 8 km od Ciechocinka.
Dojazd z Torunia trasą A1 lub drogą nr 91 zajmuje jedynie 15-20 minut.
Dla całości ternu objętego ofertą, przygotowana została architektoniczna koncepcja rozbudowy istniejącej infrastruktury do formy większego kompleksu wypoczynkowego, która może zostać wykorzystana i wprowadzona w życie przez nowego właściciela na podstawie obowiązujących decyzji i pozwoleń.
Powyższa oferta ma charakter informacyjny i nie stanowi oferty handlowej w rozumieniu art. 66 §1 Kodeksu Cywilnego.
Zapraszamy do kontaktu telefonicznego lub mailowego, aby poznać więcej szczegółów tej oferty oraz umówić prezentację.
Karolina | KK-house
Tel. +48 5pokaż telefon
Sometimes it's worth taking a bird's eye view.
FOR SALE:
ATTRACTIVE HABITAT 14.3 ha, which includes:
a newly built house/guesthouse with an area of approx. 430 m2 was designed as a hippotherapy or rehabilitation center for enthusiasts of horse riding and active rehabilitation or relaxation. The building, apart from its intended purpose, can also be used as a residential house.
stables with horse stalls. 560 m. The entire development, together with adjacent green areas, a horse run and a separate riding area, is located on plots of land with a total area of 4.4 hectares.
The property also includes approximately 9.9 hectares of land classified as arable land and forests.
The property area is equipped with basic utilities, water, electricity, sewage and gas installation.
Siedlisko is located in Otańczyn, approximately 20 km from the center of Toruń and 8 km from Ciechocinek.
Access from Toruń via the A1 route or road No. 91 takes only 15-20 minutes.
For the entire area covered by the offer, an architectural concept has been prepared for expanding the existing infrastructure into a larger recreation complex, which can be used and implemented by the new owner based on applicable decisions and permits.
The above offer is for informational purposes only and does not constitute a commercial offer within the meaning of Art. 66 §1 of the Civil Code.
Please contact us by phone or e-mail to learn more about this offer and to arrange a presentation.
Karolina | KK-house
Tel. +48 5pokaż telefon
Statystyki ogłoszenia:
Podobne nieruchomości