Działka rolna na sprzedaż Mieruniszki - 36509,0m2
2 190 540
zł
60 zł/m2
POWIERZCHNIA
36 509 m2
RODZAJ DZIAŁKI
rolna
DROGA DOJAZDOWA
utwardzona
Szczegóły oferty 1740/4158/OGS
- Kategoria Działki i grunty na sprzedaż
- Lokalizacja podlaskie, Mieruniszki
-
Powierzchnia
całkowita 36 509 m2
Sprawdź MPZP
- Powierzchnia działki36 509 m2
-
Cena
2 190 540 zł
- Cena za m2 60 zł/m2
- Dostępne od2.10.2025r.
- Rodzaj działki rolna
- Forma własności własność
- Kształt działki nieregularny
- Mediaprąd
- Droga dojazdowautwardzona
- Ogrodzenie działkibrak
Lokalizacja
Opis oferty
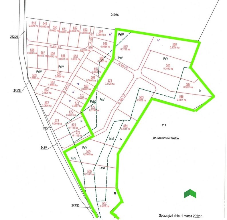
Atrakcyjne, kameralne działki rolne (kompleks) nad jeziorem Mieruńskie Wielkie, w miejscowości Mieruniszki gm. Filipów.
Opis nieruchomości:
- 11 działek rolnych,
- część działek z dostępem do jeziora,
- powierzchnia działek od 3002 m2 do 4471 m2,
- kształt prostokątny, zróżnicowany,
- dojazd do działek drogą utwardzoną, polną,
- dostępne media: prąd w drodze,
- dostępne numery działek: 579, 578, 577, 587, 586, 585, 584, 583, 588, 582, 581,
Lokalizacja:
- atrakcyjna lokalizacja nad jeziorem- Mieruńskie Wielkie (objętym strefą ciszy),
- malownicza miejscowość Mieruniszki gm. Filipów, Suwałki,
- spokojna, cicha okolica,
- część działek z dostępem do jeziora ,
Rekreacja:
- jezioro,
- tereny zielone ( lasy, łąki, pola),
Dodatkowe informacje:
- Cena 60 zł/m2,
- Cena za cały kompleks działek 2 190 540 zł do negocjacji
- Możliwość zakupu jednej działki.
Zapraszam do kontaktu w celu uzyskania dodatkowych informacji oraz umówienia się na prezentację nieruchomości.
Numer oferty w biurze nieruchomości 1740/4158/OGS
- Zadzwoń już dziś i umów się na bezpłatną prezentację -
- Zapytaj nas o najlepsze rozwiązania kredytowe -
- Kupuj bezpiecznie z Express House - Oferta wysłana z programu dla biur nieruchomości ASARI CRM (asaricrm.com)
Numer oferty: 1740/4158/OGS
Opis nieruchomości:
- 11 działek rolnych,
- część działek z dostępem do jeziora,
- powierzchnia działek od 3002 m2 do 4471 m2,
- kształt prostokątny, zróżnicowany,
- dojazd do działek drogą utwardzoną, polną,
- dostępne media: prąd w drodze,
- dostępne numery działek: 579, 578, 577, 587, 586, 585, 584, 583, 588, 582, 581,
Lokalizacja:
- atrakcyjna lokalizacja nad jeziorem- Mieruńskie Wielkie (objętym strefą ciszy),
- malownicza miejscowość Mieruniszki gm. Filipów, Suwałki,
- spokojna, cicha okolica,
- część działek z dostępem do jeziora ,
Rekreacja:
- jezioro,
- tereny zielone ( lasy, łąki, pola),
Dodatkowe informacje:
- Cena 60 zł/m2,
- Cena za cały kompleks działek 2 190 540 zł do negocjacji
- Możliwość zakupu jednej działki.
Zapraszam do kontaktu w celu uzyskania dodatkowych informacji oraz umówienia się na prezentację nieruchomości.
Numer oferty w biurze nieruchomości 1740/4158/OGS
- Zadzwoń już dziś i umów się na bezpłatną prezentację -
- Zapytaj nas o najlepsze rozwiązania kredytowe -
- Kupuj bezpiecznie z Express House - Oferta wysłana z programu dla biur nieruchomości ASARI CRM (asaricrm.com)
Numer oferty: 1740/4158/OGS
Statystyki ogłoszenia: