To ogłoszenie jest już nieaktualne

To ogłoszenie jest już nieaktualne.

Ogłoszenia archiwalne prezentujemy w celu budowania wartościowej bazy średnich cen nieruchomości.

Zobacz aktualne ogłoszenia z lokalizacji: małopolskie

Dom na sprzedaż , Orkana

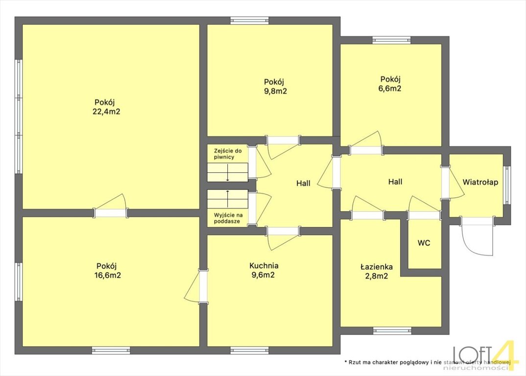
75,93 m2
319 000 PLN 4 201 zł/m2
Opis
Idealna propozycja dla osób poszukujących wymarzonego domku z ogródkiem, nie wyprowadzając się z miasta. Z przyjemnością prezentujemy na sprzedaż niewielki, drewniany dom z murowana przybudówką, położony na prestiżowym osiedlu domów jednorodzinnych Wólki w Nowym Sączu. Nieruchomość ma powierzchnie około 75m2, w skład której wchodzą: 4 pokoje, kuchnia, łazienka z osobnym wc, hall, piwniczka i strych. Dom potrzebuje remontu, więc czeka na nowe pomysły aranżacji przez nowych właścicieli. Zrobione jest centralne ogrzewanie a okna są plastikowe. Nieruchomość znajduje się na ponad 4-arowej działce, co daje spore możliwości zagospodarowania ogródka. Oprócz domu na posesji znajduje się także pomieszczenie gospodarcze, garaż, oraz własna studnia. W pobliżu liczne sklepy, galeria, szkoły, a dojazd do Rynku zajmuje zaledwie kilka minut. Atuty nieruchomości: Świetna lokalizacja - prestiżowa dzielnica Nowego Sącza 4-arowa działka dająca możliwości rozbudowy lub przebudowy Dodatkowe pomieszczenie gospodarcze i garaż Potencjał do stworzenia wyjątkowego miejsca Jeśli szukasz nieruchomości z duszą, która po remoncie może stać się wyjątkowym domem - ta oferta jest dla Ciebie! Urszula Gondek tel. 509 422 054 Loft 4 Nieruchomości - Twoje biuro, Twoi agenci! :: Oferta wysłana z programu mediaRent (media-rent.eu) ::
Więcej
Dom:
na sprzedaż
Liczba pokoi:
4
Powierzchnia całkowita:
75,93 m2
Lokalizacja:
województwo: małopolskie powiat: nowosądecki gmina: Nowy Sącz miejscowość: Nowy Sącz

Podobne oferty w tej lokalizacji