Nowoczesny segment środkowy 119m² z garażem w Bydgoszczy Bydgoszcz - 119,78m2
POWIERZCHNIA
119,78 m2
POWIERZCHNIA DZIAŁKI
m2
LICZBA POKOI
5
RODZAJ DOMU
segment
Szczegóły oferty DMT-DS-113548
- Kategoria Domy na sprzedaż
- Lokalizacja kujawsko-pomorskie, Bydgoszcz
- Powierzchnia całkowita119,78 m2
-
Cena
1 300 000 zł
- Cena za m2 10 853,23 zł/m2
- Liczba pokoi 5
- Rodzaj domu segment
- Rok budowy 22025
- Materiał inny
- Mediagaz, prąd, woda
- Droga dojazdowaasfaltowa
- Ogrodzenie działkiinne
Lokalizacja
Opis oferty
Na sprzedaż segment środkowy w zabudowie szeregowej
Cena: 1 300 000 zł
Powierzchnia użytkowa:119,78 m²
Liczba pokoi: 5
Garaż: tak, w bryle budynku
Dom w zabudowie szeregowej, segment środkowy, idealny dla rodziny szukającej komfortowego i funkcjonalnego miejsca do życia. Budynek o nowoczesnej bryle, położony w spokojnej okolicy, z dobrym dostępem do infrastruktury.
Rozkład pomieszczeń:
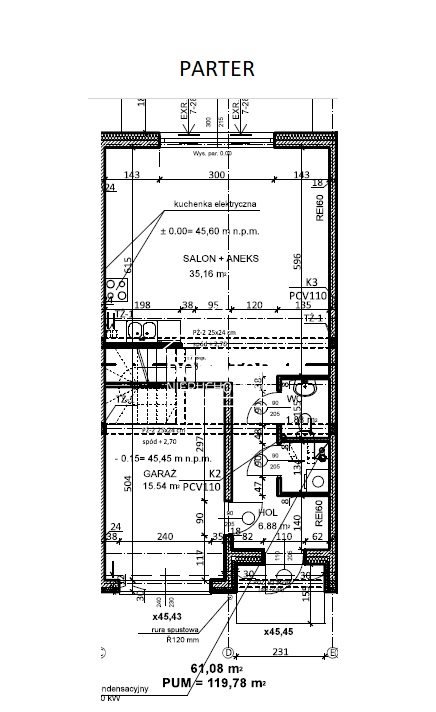
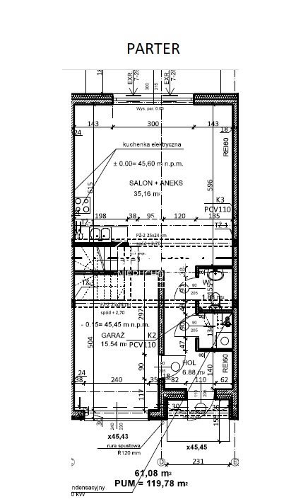
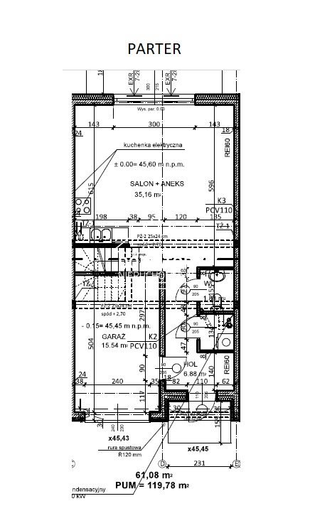
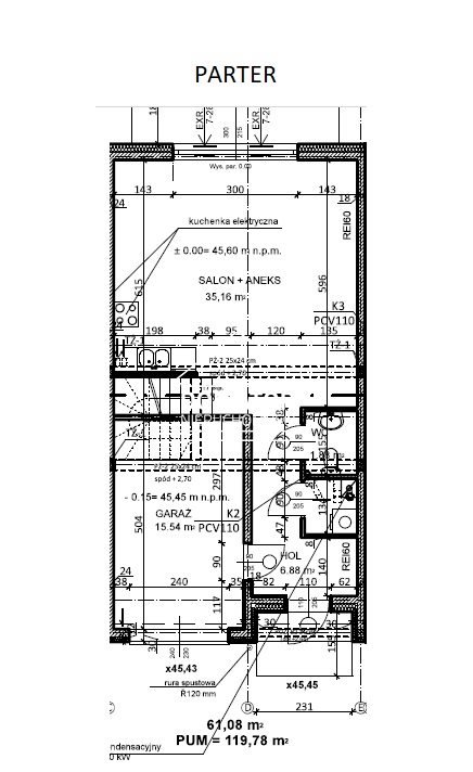
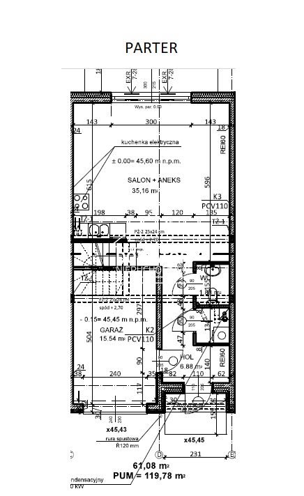
Parter
Powierzchnia użytkowa: 61,08 m²
Salon z aneksem kuchennym - 35,16 m²
Garaż - 15,54 m²
Hol - 6,88 m²
WC - 1,89 m²
Piętro
Powierzchnia użytkowa: 58,70 m²
Sypialnia - 14,53 m²
Pokój - 13,20 m²
Pokój - 11,22 m²
Pokój - 9,28 m²
Łazienka - 4,12 m²
Korytarz - 4,35 m²
Łączna powierzchnia użytkowa (PUM): 119,78 m²
Standard wykończenia - stan deweloperski PLUS:
Tynki i posadzki cementowe
Instalacje: wodno-kanalizacyjna, elektryczna, gazowa
Piec gazowy oraz ogrzewanie podłogowe na całym parterze wraz z garażem
Okna na profilach Schüco z elektrycznymi roletami zewnętrznymi
Drzwi garażowe z napędem elektrycznym
Taras, podjazd i wejście do budynku wykonane z kostki brukowej
Ogrodzenie z nowoczesnych paneli 3D, z furtką od frontu oraz od strony ogrodu
Ogrodzenie i kostka brukowa wykonane
Dodatkowo:
Nieruchomość z rynku pierwotnego - kupujący zwolniony z podatku PCC (2%)
Dlaczego warto?
Segment środkowy- Dzięki temu, że nie ma bezpośredniego kontaktu z zewnętrznym otoczeniem z obu boków, dom jest lepiej chroniony przed:
hałasem ulicznym,
silnym wiatrem,
nagłymi zmianami temperatury.
4 sypialnie, przestronny salon z aneksem, garaż w bryle budynku i ogródek
Gotowe przyłącza i wysoki standard wykonania - dom przygotowany do wykończenia „pod klucz”
Atuty lokalizacji:
Spokojna, zielona okolica
Blisko sklepy, szkoły, przedszkola, żłobki, usługi i komunikacja miejska
Szybki dojazd do centrum Bydgoszczy
Pośrednik odpowiedzialny zawodowo za wykonanie umowy pośrednictwa: Beata Jażdżewska (licencja nr: 24245)
--------------------------
Treść niniejszego ogłoszenia nie stanowi oferty handlowej w rozumieniu Kodeksu Cywilnego.
Oferta wysłana z systemu Galactica Virgo
Numer oferty: DMT-DS-113548
Statystyki ogłoszenia:
Podobne nieruchomości