Targowisko , przy A-4Do wynajęcia hala od 1500 do 5500 m 2, wysoka na 15 m, 4 doki dla TIR , 1 podjazd "0".Hala logistyczna z re...
Targowisko , przy A-4Do wynajęcia hala od 1500 do 5500 m 2, wysoka na 15 m, 4 doki dla TIR , 1 podjazd "0".Hala logistyczna z re...
Kraków Igołomska / Brzeska Działka o powierzchni 60 arów , ujęta w Planie Zagospodarowania jako TEREN ZABUDOWY USŁUGOWEJ :Podsta...
Kraków Igołomska / Brzeska Działka o powierzchni 50 arów , ujęta w Planie Zagospodarowania jako TEREN ZABUDOWY USŁUGOWEJ :Podsta...
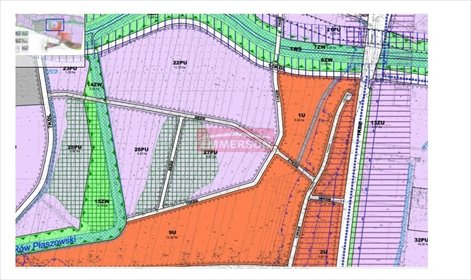
Kraków Igołomska / Brzeska Oferowana nieruchomość gruntowa położona jest w Krakowie po wschodniej stronie, przy dwóch głównych d...
Kraków Igołomska / Brzeska Oferowana nieruchomość gruntowa położona jest w Krakowie po wschodniej stronie, przy dwóch głównych d...
Kraków Igołomska / Brzeska Oferowana nieruchomość gruntowa położona jest w Krakowie po wschodniej stronie, przy dwóch głównych d...
Na sprzedaż nieruchomość usługowa , 180 m2 domu na siedzibę firmy , 48 arów działki usługowej , możliwość zabudowy do 50 % , do ...
Okolice Bochni.Budynek przy głównej ulicy Brzeskiej , 900 m2 handlowo usługowej powierzchni plus magazyn.Działka 140 arów w plan...
Kraków , ul. Igołomska , 30 arów , działka MU - mieszkaniowo usługowa . Obowiązujący Plan zagospodarowania, na działce stary dom...
Kraków , Modlnica przy Obwodnicy , do sprzedania moduł 2000 m2 hali magazynowej , udział w działce .Hala nowo wybudowana, nowocz...
Kraków , Modlnica przy Obwodnicy , do sprzedania moduł 1500 m2 hali magazynowej , udział w działce .Hala nowo wybudowana, nowocz...
Kraków , Modlnica , nowa , nowoczesna hala , moduł do wynajęcia na umowę długoterminową .1000 m2 , 11 m wysokości , dwa doki roz...
Kraków , Modlnica , nowa , nowoczesna hala , moduł do wynajęcia na umowę długoterminową .1500 m2 , 11 m wysokości , dwa doki roz...
Kraków , Modlnica przy Obwodnicy , do sprzedania moduł 500 m2 hali magazynowej , udział w działce .Hala nowo wybudowana, nowocze...
Kraków , Modlnica przy Obwodnicy , do sprzedania moduł 1500 m2 hali magazynowej , udział w działce .Hala nowo wybudowana, nowocz...
Kraków , Modlnica przy Obwodnicy , do sprzedania moduł 1000 m2 hali magazynowej , udział w działce .Hala nowo wybudowana, nowocz...
Kraków , ul. Skotnicka, 100 arów działki usługowej, MPZP obowiazuje , cena 55 000 zł netto za ar Oferta wysłana z programu dla b...
Kraków , ul. Skotnicka, 50 arów działki usługowej, MPZP obowiazuje , cena 55 000 zł netto za ar Oferta wysłana z programu dla bi...
Kraków , ul. Skotnicka, 25 arów działki usługowej, MPZP obowiazuje , cena 55 000 zł netto za ar Oferta wysłana z programu dla bi...
Kraków ul. Skotnicka , do wynajęcia działka usługowa, utwardzona . 50 arów w kwadracie , cena 10 000 zł netto miesięcznie. Dział...
Do sprzedania działka na halę, biura, siedzibę , usługi na Rybitwach w Krakowie . Działa 48 arów , działka płaska, ogrodzona. na...
Do sprzedania działka na halę , produkcja , usługi na Rybitwach w Krakowie . Działa 180 arów , możliwości zabudowy halą o pow 60...
Targowisko , Kłaj do wynajęcia Hala wysokiego składowania 1000 m 2 .wysokość 11 m, hala nowoczesna , plac manewrowy, media. Ofer...
Targowisko , Kłaj do wynajęcia Hala wysokiego składowania 1000 m 2 .wysokość 11 m, hala nowoczesna , plac manewrowy, media. Ofer...
Targowisko , Kłaj do wynajęcia Hala wysokiego składowania 2000 m 2 .wysokość 11 m, hala nowoczesna , plac manewrowy, media. Ofer...
Okolice Łapanowa , miejscowość Trzciana .Działka budowlana , bardzo widokowa Oferta wysłana z programu dla biur nieruchomości AS...
Do sprzedania działka na halę , produkcja , usługi na Rybitwach w Krakowie . Działa 26 arów , możliwości zabudowy halą o pow 150...
Do sprzedania działka przemysłowa w okolicy Targowiska . Powierzchnia 75 arów , możliwa zabudowa halą lub zakładem produkcyjnym ...
Oferta wysłana z programu dla biur nieruchomości ASARI CRM (asaricrm.com)...
Do sprzedania działka przemysłowa w okolicy Targowiska . Powierzchnia 150 arów , możliwa zabudowa halą lub zakładem produkcyjnym...