Przestronne 3 pokoje z dużym ogródkiem na Naramowicach Poznań, Naramowicka - 67,68m2
POWIERZCHNIA
67,68 m2
PIĘTRO
parter / 6
LICZBA POKOI
3
PARKING
-
Szczegóły oferty 11743535 Data dodania: dzisiaj
- Kategoria Mieszkania na sprzedaż
- Lokalizacja wielkopolskie, Poznań, Naramowicka
- Powierzchnia całkowita67,68 m2
-
Cena
715 353 zł
- Cena za m2 10 569,64 zł/m2
- Liczba pokoi 3
- Piętro Parter
- Liczba pięter w budynku 6
- Typ budynkuinny
- Materiał inny
Lokalizacja
Opis oferty
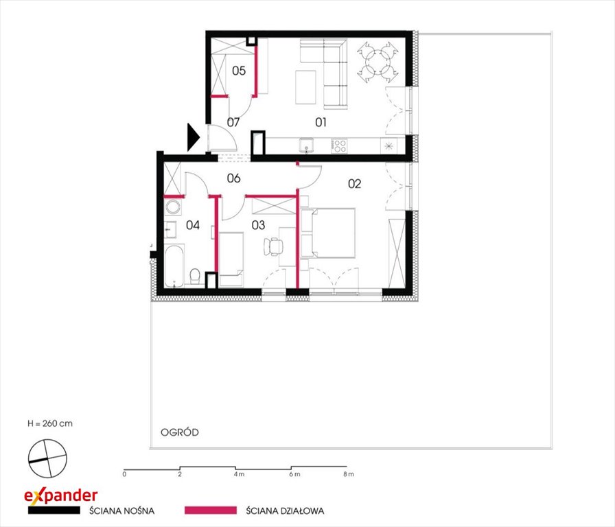
Mieszkanie 3 pokojowe z dużym ogródkiem w SUPER CENIE!
STARA CENA - 764 384zł
NOWA CENA - 715 353zł
Inwestycja mieści się na Naramowicach, jest to jedna z najbardziej pożądanych dzielnic Poznania. Naramowice cieszą się tak dużym zainteresowaniem, ponieważ tutaj wszystko znajduje się pod ręką, sprawy dnia codziennego załatwimy 'przy okazji', dodatkowo jest to najbardziej zielona część Poznania. Dzięki sąsiedztwu rezerwatu Żurawiniec, oraz innym licznym terenom zielonym możemy spędzić czas na świeżym powietrzu.
Najważniejsze atutu inwestycji:
- wiele sklepów, punktów usługowych, punktów gastronomicznych
- bliskość Biblioteki Raczyńskich
- szkoły, przedszkola
- punkty medyczne
- świetna komunikacja, do centrum kilka minut tramwajem
Najważniejsze atuty mieszkania:
- funkcjonalny układ
- idealne dla rodziny, lub pary
- duży ogródek- 122metra
- duże okna, dające dużo światła
Zapraszam do kontaktu i umówienia się na prezentacje
Zewnętrzny pośrednik dewelopera
Patrycja Górna
660pokaż telefon
Mieszkanie D0033
Oferta dodana z propertly.io
Nr oferty w biurze: 1174pokaż telefon
Numer oferty: 11743535
Statystyki ogłoszenia:
Podobne nieruchomości