Nowoczesne 3‑pokojowe z ogródkiem, loft, wysoka jakość Poznań, Jasielska - 76,39m2
POWIERZCHNIA
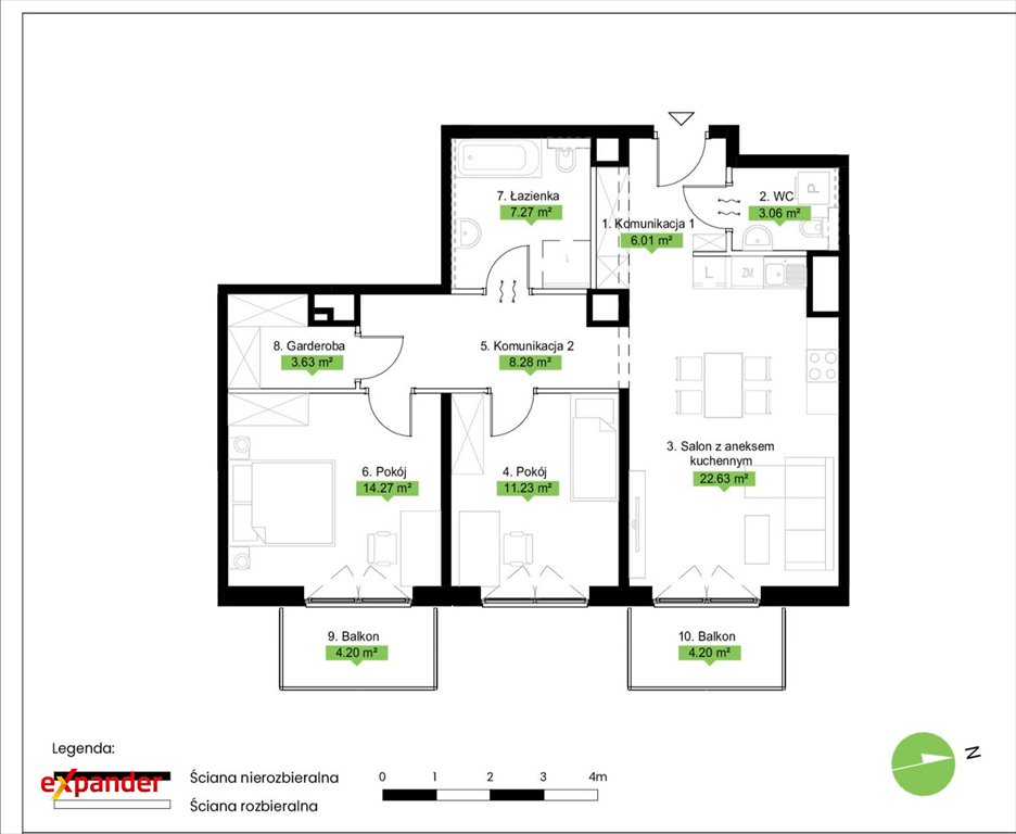
76,39 m2
PIĘTRO
4 / 4
LICZBA POKOI
3
PARKING
-
Szczegóły oferty 11641871 Data dodania: dzisiaj
- Kategoria Mieszkania na sprzedaż
- Lokalizacja wielkopolskie, Poznań, Jasielska
- Powierzchnia całkowita76,39 m2
-
Cena
916 680 zł
- Cena za m2 12 000 zł/m2
- Liczba pokoi 3
- Piętro 4
- Liczba pięter w budynku 4
- Typ budynkuinny
- Materiał inny
Lokalizacja
Opis oferty
Nowe mieszkanie 3‑pokojowe - wysoka jakość, świetna izolacja, loftowy charakter
Na sprzedaż oferuję komfortowe, 3‑pokojowe mieszkanie z prywatnym ogródkiem. Lokal znajduje się w nowoczesnej inwestycji zrealizowanej w technologii prefabrykacji, która zapewnia nie tylko solidność i trwałość, ale również bardzo dobre parametry cieplne i akustyczne. Dodatkowo nadaje wnętrzom subtelny, loftowy charakter.
Najważniejsze atuty mieszkania
-świetna izolacja termiczna i niższe koszty ogrzewania
-bardzo dobra akustyka
-nowoczesny, industrialny styl
-duże przeszklenia i jasne wnętrza
-nowy budynek, wysoki standard części wspólnych
Dodatkowe informacje
Do mieszkania obligatoryjnie przynależą dwa miejsce postojowe w hali garażowej - zakup miejsc jest warunkiem nabycia lokalu. Cena jednego miejsca 35 000zł
Wsparcie przy wykończeniu i finansowaniu
Oferuję pomoc w wykończeniu mieszkania pod klucz. Współpracuję z firmą specjalizującą się w kompleksowych realizacjach wnętrz.
Kupujący już na starcie otrzymuje:
pełną, z góry znaną cenę wykończenia,
gwarantowany termin zakończenia prac.
Dodatkowo mogę pomóc w uzyskaniu kredytu, kierując do sprawdzonego doradcy, który przeprowadzi cały proces sprawnie i przejrzyście.
Zapraszam do kontaktu
Patrycja Górna
660pokaż telefon
Zewnętrzny agent dewelopera
Mieszkanie B222
Oferta dodana z propertly.io
Nr oferty w biurze: 1164pokaż telefon
Numer oferty: 11641871
Statystyki ogłoszenia:
Podobne nieruchomości