ico powierzchnia

POWIERZCHNIA

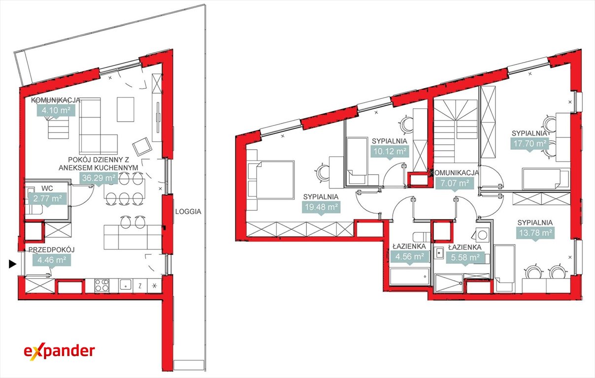
125,90 m2

ico pietro

PIĘTRO

16 / 16

ico liczba pokoi

LICZBA POKOI

5

ico parking

PARKING

-

Szczegóły oferty 10039313 Data dodania: dzisiaj

  • Kategoria Mieszkania na sprzedaż
  • Lokalizacja śląskie, Katowice, Sokolska
  • Powierzchnia całkowita125,90 m2
  • Cena

    2 145 411 zł

    Reklama ico Sprawdź ratę Sprawdź ratę RSSO 6,07% na dz. 20.04.26 trade ico trade ico trade
  • Cena za m2 17 040,60 zł/m2
  • Liczba pokoi 5
  • Piętro 16
  • Liczba pięter w budynku 16
  • Typ budynkuinny
  • Rok budowy 2026
  • Materiał inny

Lokalizacja

Katowice, Sokolska

Opis oferty

0 zł prowizji - BEZ UKRYTYCH OPŁAT
BEZ podatku PCC 2% - Zakup mieszkania z BALKONEM od Developera

Dzwoniąc na to ogłoszenie BEZPŁATNIE ZYSKUJESZ:
- profesjonalną obsługę kredytową,
- profesjonalną pomoc doświadczonego eksperta w inwestowaniu w nieruchomości,
- możliwość wykończenia lokalu przez SPRAWDZONĄ FIRMĘ (do wyboru kilka wariantów od Economy i Optimal po Exclusive),
- rabat 10% w sklepach Bel-Pol i Leroy Merlin.
- możliwość zarządzania najmem Twojej inwestycji,

Zalety inwestycji:
- panoramiczne widoki,
- duże rogowe balkony,
- bezprzewodowy system zarządzania inteligentnym domem
- Wyjątkowa lokalizacja zapewnia łatwy dostęp do ścisłego  centrum miasta ,
- Mieszkania oddawane w stanie deweloperskim lub pod klucz,
- CO i c.w.u. MIEJSKIE,
- bardzo wysoki standard wykończenia części wspólnych.

Opis Inwestycji:
Projekt to trzy wieżowce obejmujące ponad 300 lokali mieszkalnych,
Dostępne miejsca postojowe podziemne i komórki lokatorskie ale nieobowiązkowe,
Kompaktowe i zróżnicowane układy 1-, 2-, 3-, 4- lub 5-pokojowych mieszkań dla singli, par, jak i seniorów.

Komunikacja:
- Łatwy i szybki dojazd poprzez trasy DTŚ(1 min do wjazdu) oraz A4 (10 min do wjazdu),
- dworzec PKP 400m,
- przystanek autobusowy 30 m,

W pobliżu :
Galerie handlowe,
Park Powstańców Śląskich,
Teatr Wielki,
Uniwersytet Śląski,
restauracje, kawiarnie, banki, siłownia, sklepy i punkty usługowe

Załączone wizualizacje są autorstwa naszego Partnera Quality Investment, którego polecamy do wykończenia wnętrz.

Cena ofertowa lokalu dotyczy stanu developerskiego.
Cena stanu pod klucz - informacja pod nr tel. 515 - 018 - 840.

Krzysztof Poloczek
krzysztof.poloczek@expander,pl
515pokaż telefon

Zapewniamy uzyskanie kredytu hipotecznego na bardzo dobrych warunkach.

Zamieszczona oferta nie stanowi oferty w rozumieniu Kodeksu Cywilnego, a dane w niej zawarte mają jedynie charakter informacyjny i mogą podlegać aktualizacji. nr. lok.  A 1/16/111


Oferta dodana z propertly.io
Nr oferty w biurze: 1003pokaż telefon


Numer oferty: 10039313

Statystyki ogłoszenia:

oko

Podobne nieruchomości