Nowoczesne 2-pokojowe mieszkanie z balkonem w Poznaniu Poznań, Unii Lubelskiej - 50,81m2
POWIERZCHNIA
50,81 m2
PIĘTRO
1 / 7
LICZBA POKOI
2
PARKING
-
Szczegóły oferty 11730767 Data dodania: dzisiaj
- Kategoria Mieszkania na sprzedaż
- Lokalizacja wielkopolskie, Poznań, Unii Lubelskiej
- Powierzchnia całkowita50,81 m2
-
Cena
586 500 zł
- Cena za m2 11 543 zł/m2
- Liczba pokoi 2
- Piętro 1
- Liczba pięter w budynku 7
- Typ budynkuinny
- Materiał inny
Lokalizacja
Opis oferty
Na sprzedaż 2- pokojowe mieszkanie o powierzchni 50,81 m2 w nowoczesnej i prestiżowej inwestycji.
Doskonała oferta dla osób szukających miejsca do życia, oraz dla inwestorów poszukujących nieruchomości o wysokim potencjale najmu
BEZ PROWIZJI i podatku PCC! Zakup bezpośrednio od dewelopera gwarancją najniższej ceny. Pełne wsparcie na każdym etapie kupna.
CENA: 586 499,83 zł - cena za metr 2 - 11 543 zł
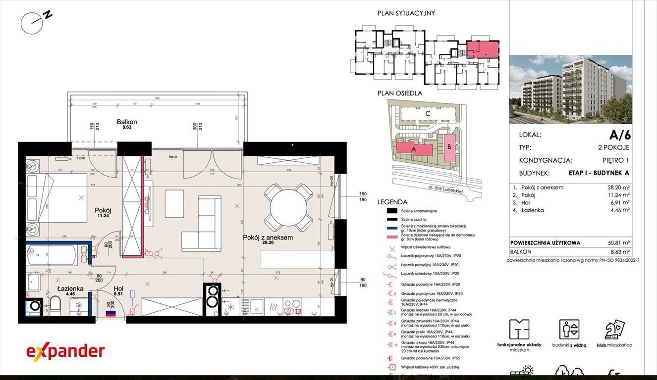
Układ mieszkania:
Salon z aneksem - 28,20 m2 (możliwość wydzielenia osobnej kuchni z oknem)
Pokój - 11,24 m2
Hol - 6,91 m2
Łazienka - 4,46 m2
Dodatkowo:
Balkon - 8,63 m2
Termin oddania: IV kwartał 2026 roku - stan deweloperski - możliwość wykończenia 'pod klucz' już od 890 zł/m2
Atuty inwestycji:
Nowoczesna architektura i wysoki standard wykończenia części wspólnych,
Zielone dziedzice oraz strefy relaksu dla mieszkańców
Monitoring i kontrola dostępu
Podziemna hala garażowa
Cichobieżne windy
Energooszczędne rozwiązania
Lokalizacja:
Doskonale skomunikowana część miasta, szybki dojazd do centrum
Bliskość przystanków autobusowych i tramwajowych
W pobliżu sklepy, restauracje, punkty usługowe
Tereny zielone i rekreacyjne
Uczelnie i biurowce w zasięgu kilku minut
Możliwość zakupu miejsca parkingowego na platformie - 42 100 zł
Oferta dotyczy mieszkania A 6
Oferta dodana z propertly.io
Nr oferty w biurze: 1173pokaż telefon
Numer oferty: 11730767
Statystyki ogłoszenia:
Podobne nieruchomości