Przestronny dwupoziomowy apartament 106m2 z balkonem Iwiny, Miodowa - 106,42m2
POWIERZCHNIA
106,42 m2
PIĘTRO
parter / 1
LICZBA POKOI
4
PARKING
-
Szczegóły oferty 9712377 Data dodania: dzisiaj
- Kategoria Mieszkania na sprzedaż
- Lokalizacja dolnośląskie, Iwiny, Miodowa
- Powierzchnia całkowita106,42 m2
-
Cena
748 000 zł
- Cena za m2 7 028,75 zł/m2
- Liczba pokoi 4
- Piętro Parter
- Liczba pięter w budynku 1
- Typ budynkuinny
- Materiał inny
Lokalizacja
Opis oferty
Na sprzedaż apartament przy Miodowej Alei
Opis inwestycji:
Apartamenty przy Miodowej Alei to kameralna, rodzinna inwestycja w Iwinach, idealna dla osób ceniących spokój i bliskość natury, a jednocześnie dobrą komunikację z Wrocławiem.
Na osiedlu znajdą się cztery szeregi niskich budynków z dwuspadowymi dachami i ekologicznymi elementami architektonicznymi. Bezpieczeństwo mieszkańców zapewnią ogrodzenie, monitoring oraz wideodomofony.
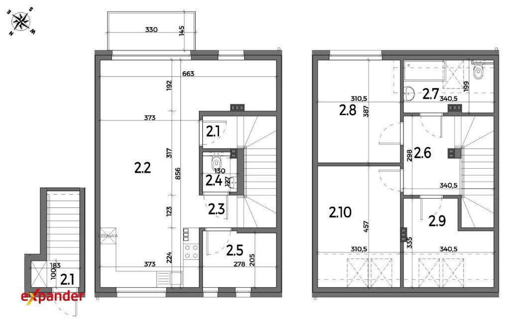
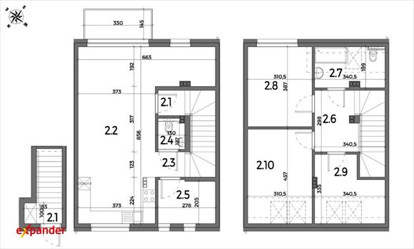
Układ mieszkania:
Oferowany apartament to przestronny, dwupoziomowy lokal o funkcjonalnym układzie. W cenie możliwość indywidualnej aranżacji ścianek działowych oraz instalacji.
Na drugim poziomie dodatkowy stryszek zwiększający przestrzeń użytkową.
Powierzchnia użytkowa: 90,62 m²
Powierzchnia całkowita: 106,42 m²
Balkon/taras: 4,7 m²
Zakończenie budowy: II kwartał 2025 r.
Lokalizacja i okolica:
Cicha okolica w podmiejskich Iwinach, przy ul. Miodowej.
Bliskość terenów zielonych: Park Na Skraju, Park Bieńkowicki i Park Brochowski zachęcają do aktywnego wypoczynku.
Świetna komunikacja:
Centrum Wrocławia - 20 min autem, 30-35 min komunikacją miejską.
Przystanki autobusowe: 5 min pieszo (2 linie), 15 min pieszo (4 linie).
Stacja PKP Iwiny - 2 km.
Wschodnia obwodnica Wrocławia - 5 min autem.
Okolica zapewnia dostęp do:
Plac zabaw - 3 min spacerem.
Sklep spożywczy - 8 min spacerem, 4 min rowerem.
Publiczne przedszkole - 5 min spacerem.
Szkoła podstawowa - 5 min autem.
Wrocławski Park Wodny - 5 min autem.
Apartamenty przy Miodowej Alei to miejsce, które łączy komfort, spokój i wygodę. Świetna lokalizacja w połączeniu z funkcjonalnym układem mieszkania sprawiają, że jest to idealna propozycja dla rodzin i osób szukających harmonii między życiem w mieście a kontaktem z naturą.
Cena: 748 000 PLN
Lok.: D2-2
Zapraszamy do kontaktu:
Aleksandra Dołęgowska
Tel.: 784pokaż telefon
Niniejsza oferta nie stanowi oferty w rozumieniu przepisów Kodeksu Cywilnego, a informacje w niej zawarte mają jedynie charakter orientacyjny i mogą ulec zmianie.
Oferta dodana z propertly.io
Nr oferty w biurze: 971pokaż telefon
Numer oferty: 9712377
Statystyki ogłoszenia:
Podobne nieruchomości