ico powierzchnia

POWIERZCHNIA

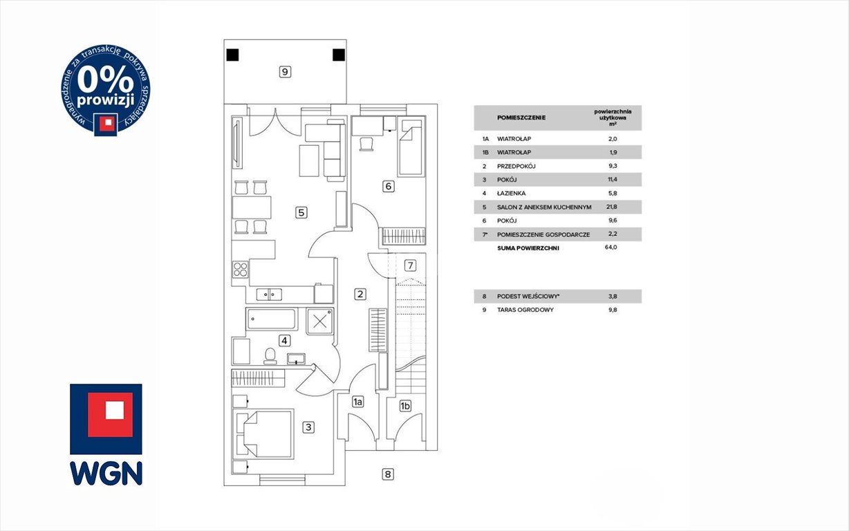
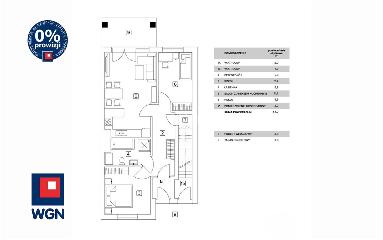
64,00 m2

ico pietro

PIĘTRO

parter / 3

ico liczba pokoi

LICZBA POKOI

3

ico parking

PARKING

-

Szczegóły oferty 740050

  • Kategoria Mieszkania na sprzedaż
  • Lokalizacja lubuskie, Łagów Lubuski, Łagów Lubuski
  • Powierzchnia całkowita64 m2
  • Cena

    384 000 zł

    Reklama ico Sprawdź ratę Sprawdź ratę RSSO 6,26% na dz. 16.02.26 trade ico trade ico trade
  • Cena za m2 6 000 zł/m2
  • Liczba pokoi 3
  • Piętro Parter
  • Liczba pięter w budynku 3
  • Typ budynkuinny
  • Rok budowy 2024
  • Forma własności własność
  • Materiał inny
  • Kuchniaw aneksie
Informacje dodatkowe:
ogrzewanie centralne

Opis oferty

MIESZKANIE PARTEROWE ,64 m2, ŁAGÓW LUBUSKI, UL. CHOPINA, POWIAT ŚWIEBODZIŃSKI, GMINA ŁAGÓW LUBUSKI,WOJEWÓDZTWO LUBUSKIE. 
 
NOWE MIESZKANIE NA SPRZEDAŻ , PARTER, Z OGRODEM, STAN DEWELOPERSKI 
 
Oferujemy na sprzedaż nowoczesne mieszkanie parterowe w zabudowie bliźniaczej, zlokalizowane w spokojnej okolicy Łagowa Lubuskiego, blisko jezior, terenów rekreacyjnych oraz pełnej infrastruktury. 
 
Powierzchnia: 64 m2 
Układ pomieszczeń: 
 
wiatrołap 
 
przedpokój 
 
salon z aneksem kuchennym 
 
2 pokoje 
 
łazienka 
 
pomieszczenie gospodarcze 
 
taras ogrodowy 
 
podest wejściowy 
 
Ekspozycja stron świata: 
 
salon i jeden pokój - południowa 
 
drugi pokój - północna 
 
Standard wykończenia: 
 
stan deweloperski 
 
piec gazowy w cenie (możliwość zmiany na pompę ciepła  fotowoltaikę) 
 
ściany nośne: silikat 24 cm i 18 cm 
 
ocieplenie: styropian grafitowy 20 cm 
 
stropy: płyty strunobetonowe 
 
dachówka ceramiczna Rben 
 
okna PVC Salamander 3-szybowe  okna dachowe FAKRO 
 
przygotowanie pod rolety elektryczne, parapety granitowe 
 
drzwi docelowo antywłamaniowe 
 
Otoczenie: 
 
teren ogrodzony, dojazd drogą z kostki 
 
blisko jezior, lasów, ścieżek rowerowych 
 
sklepy (Dino, Biedronka), szkoła, ośrodek zdrowia 
 
zabytkowy zamek Joannitów 
 
Cena do negocjacji. 
 
Informacje dotyczące nieruchomości zostały sporządzone na podstawie oświadczeń i nie są ofertą w rozumieniu przepisów prawa, mają charakter wyłącznie informacyjny i mogą podlegać aktualizacji, zalecamy ich osobistą weryfikację. 
Wszystkie teksty, rysunki, zdjęcia oraz wszystkie inne informacje opublikowane na niniejszych stronach podlegają prawom autorskim. 
Wszelkie kopiowanie, dystrybucja, elektroniczne przetwarzanie oraz przesyłanie zawartości bez zezwolenia są zabronione. Wszelkie prawa zastrzeżone.


Numer oferty: 740050

Statystyki ogłoszenia:

oko

Podobne nieruchomości