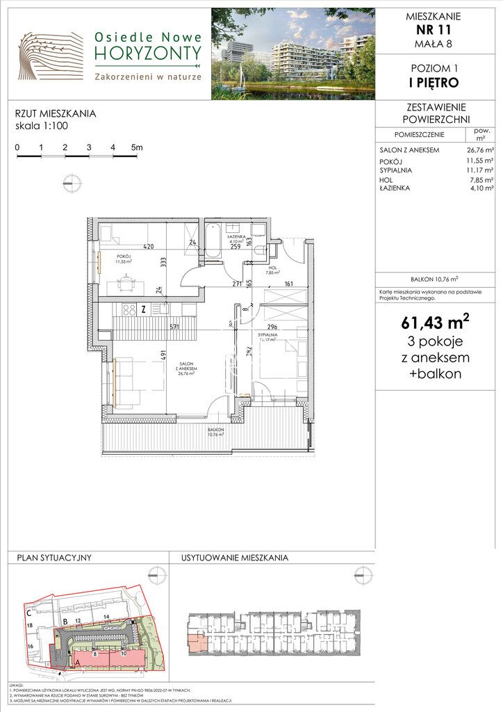
Przestronne 3-pokojowe mieszkanie na sprzedaż w Bydgoszczy Bydgoszcz, Fordońska - 59,96m2
593 604
zł
9 900 zł/m2
POWIERZCHNIA
59,96 m2
PIĘTRO
1 / 7
LICZBA POKOI
3
PARKING
miejsce parkingowe
Szczegóły oferty 13939/14150/OMS Data dodania: 24 dni temu
- Kategoria Mieszkania na sprzedaż
- Lokalizacja kujawsko-pomorskie, Bydgoszcz, Fordońska
- Powierzchnia całkowita59,96 m2
-
Cena
593 604 zł
- Cena za m2 9 900 zł/m2
- Liczba pokoi 3
- Piętro 1
- Liczba pięter w budynku 7
- Dostępne od1.04.2026r.
- Typ budynkublok
- Rok budowy 2026
- Materiał inny
- Informacje dodatkowe:
- winda, ogrzewanie miejskie, balkon, piwnica, miejsce parkingowe, ogródek, loggia
- Okolica:
- szkoła, przedszkole, park
Lokalizacja
Opis oferty
Oferta wysłana z programu dla biur nieruchomości ASARI CRM (asaricrm.com)
Numer oferty: 13939/14150/OMS
Statystyki ogłoszenia:
Podobne nieruchomości