Działka 5 009 m² z warunkami zabudowy w Warnicach Warnice - 5009,0m2
200 000
zł
39,93 zł/m2
POWIERZCHNIA
5 009 m2
RODZAJ DZIAŁKI
inna
DROGA DOJAZDOWA
-
Szczegóły oferty 77/BTS/DZS
- Kategoria Działki i grunty na sprzedaż
- Lokalizacja zachodniopomorskie, Warnice
-
Powierzchnia
całkowita 5 009 m2
Sprawdź MPZP
- Powierzchnia działki5 009 m2
-
Cena
200 000 zł
- Cena za m2 39,93 zł/m2
- Rodzaj działki inna
- Kształt działki PROSTOKĄT
- Ogrodzenie działkibrak
Lokalizacja
Opis oferty
Ofertą sprzedaży jest nieruchomość gruntowa niezabudowana zlokalizowana w miejscowości Warnice
Wydane warunki zabudowy na jedną z działek: budynek mieszkalny jednorodzinny w zabudowie zagrodowej.
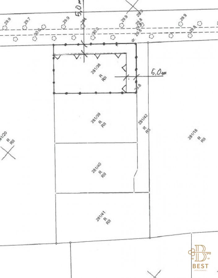
Nieruchomość składa się z działek o powierzchni:
- 0,1101 ha
- 0,1116 ha
- 0,1092 ha
- 0,1212 ha
- 0,0488 ha - wydzielona pod drogę wewnętrzną.
Ofertą sprzedaży jest kompleks wydzielonych 4 działek + droga wewnętrzna.
Dojazd drogą gruntową.
Brak uzbrojenia.
Grunty o przeznaczeniu rolnym. Symbol klasoużytku: RII.
Nieruchomości zlokalizowana 5 km od Stargardu, 7 km od Jeziora Miedwie.
Oferta wyłącznie w BEST Nieruchomości.
Zadzwoń i dowiedz się szczegółów.
tel. 577pokaż telefon
Treść niniejszego ogłoszenia nie stanowi oferty handlowej w rozumieniu Kodeksu Cywilnego. Treść ma charakter informacyjny i zalecamy ich osobistą weryfikację. Kontaktując się z biurem Klient wyraża zgodę na przetwarzanie danych osobowych zgodnie z przepisami ustawy z dnia 29 sierpnia 1997 roku o ochronie danych osobowych / Dz.U.Nr. 133 poz. 883/. Klientowi przysługuje prawo do wglądu do swoich danych osobowych i ich aktualizacji.
:: Oferta wysłana z programu mediaRent (media-rent.eu) ::
Numer oferty: 77/BTS/DZS
Osoba odpowiedzialna zawodowo: Beata Strakszys-Kasprzak
Nr licencji zawodowej: 23164
Numer oferty: 77/BTS/DZS
Osoba odpowiedzialna zawodowo: Beata Strakszys-Kasprzak
Nr licencji zawodowej: 23164
Statystyki ogłoszenia:
Podobne nieruchomości