Działka budowlana na sprzedaż Kraków, Olszanica - 2164,0m2
Oferta na wyłączność
1 960 000
zł
905,73 zł/m2
POWIERZCHNIA
2 164 m2
RODZAJ DZIAŁKI
budowlana
DROGA DOJAZDOWA
asfaltowa
Szczegóły oferty EC111543 Data dodania: dzisiaj
- Kategoria Działki i grunty na sprzedaż
- Lokalizacja małopolskie, Kraków, Olszanica
-
Powierzchnia
całkowita 2 164 m2
Sprawdź MPZP
-
Cena
1 960 000 zł
- Cena za m2 905,73 zł/m2
- Rodzaj działki budowlana
- Rok budowy 1
- Droga dojazdowaasfaltowa
- Ogrodzenie działkiinne
Lokalizacja
Opis oferty
Tylko u nas!
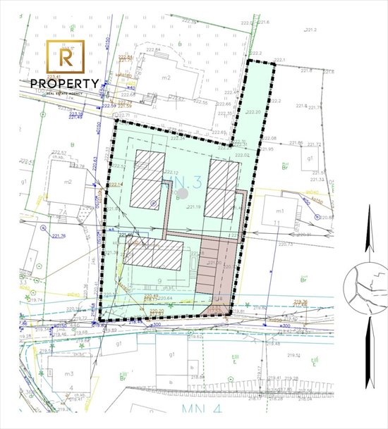
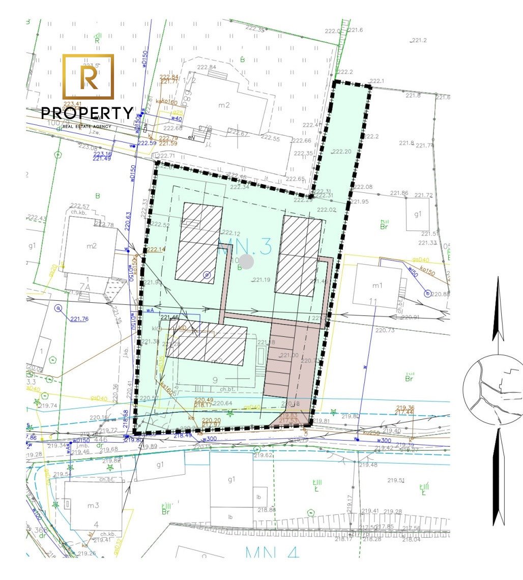
|R| Property prezentuje na sprzedaż działkę budowlaną o powierzchni 2164 m2 w Olszanicy przy ul. Zofii Stryjeńskiej.
Najważniejsze informacje:
Parametry i wskaźniki kształtowania zabudowy i zagospodarowania terenów:
Inne:
Cena:
1 960 000 zł.
Zapraszamy na prezentację!
Numer oferty: EC111543
Osoba odpowiedzialna zawodowo: Agnieszka Wiśniewska
|R| Property prezentuje na sprzedaż działkę budowlaną o powierzchni 2164 m2 w Olszanicy przy ul. Zofii Stryjeńskiej.
Najważniejsze informacje:
- w MPZP oznaczona jako MN.3 - Tereny zabudowy mieszkaniowej jednorodzinnej (wolnostojąca oraz bliźniacza)
- w całości budowlana
- zróżnicowany kształt
- wymiary ok 36m/46/40/50 (wymiary w galerii)
- zjazd bezpośrednio z drogi publicznej, asfaltowej
- wszystkie media w działce (prąd, woda, gaz, kanalizacja gminna)
Parametry i wskaźniki kształtowania zabudowy i zagospodarowania terenów:
- minimalny wskaźnik terenu biologicznie czynnego: 70%,
- wskaźnik intensywności zabudowy: 0,1 - 0,5,
- maksymalna wysokość zabudowy: 9 m,
- maksymalna wysokość zabudowy dla budynków gospodarczych, garaży wolnostojących, wiat i altan: 5 m.
Inne:
- Oferta idealna dla inwestora - w galerii dostępna jest przykładowa koncepcja dla 3-ech domów w zabudowie bliźniaczej z miejscami postojowymi zewnętrznymi. (PUM ok 1200m2)
- Aktualnie działka zabudowana budynkiem jednorodzinnym oraz gospodarczym - możliwe wyburzenie
- 1,2 km do stacji kolejowej Kraków Olszanica PKP
- 900m od przystanku autobusowego Leśmiana linie - 152, 192, 300, 902
- 600m od Przedszkola i Szkoły Podstawowej
Cena:
1 960 000 zł.
Zapraszamy na prezentację!
Numer oferty: EC111543
Osoba odpowiedzialna zawodowo: Agnieszka Wiśniewska
Statystyki ogłoszenia:
Podobne nieruchomości